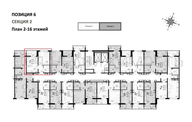
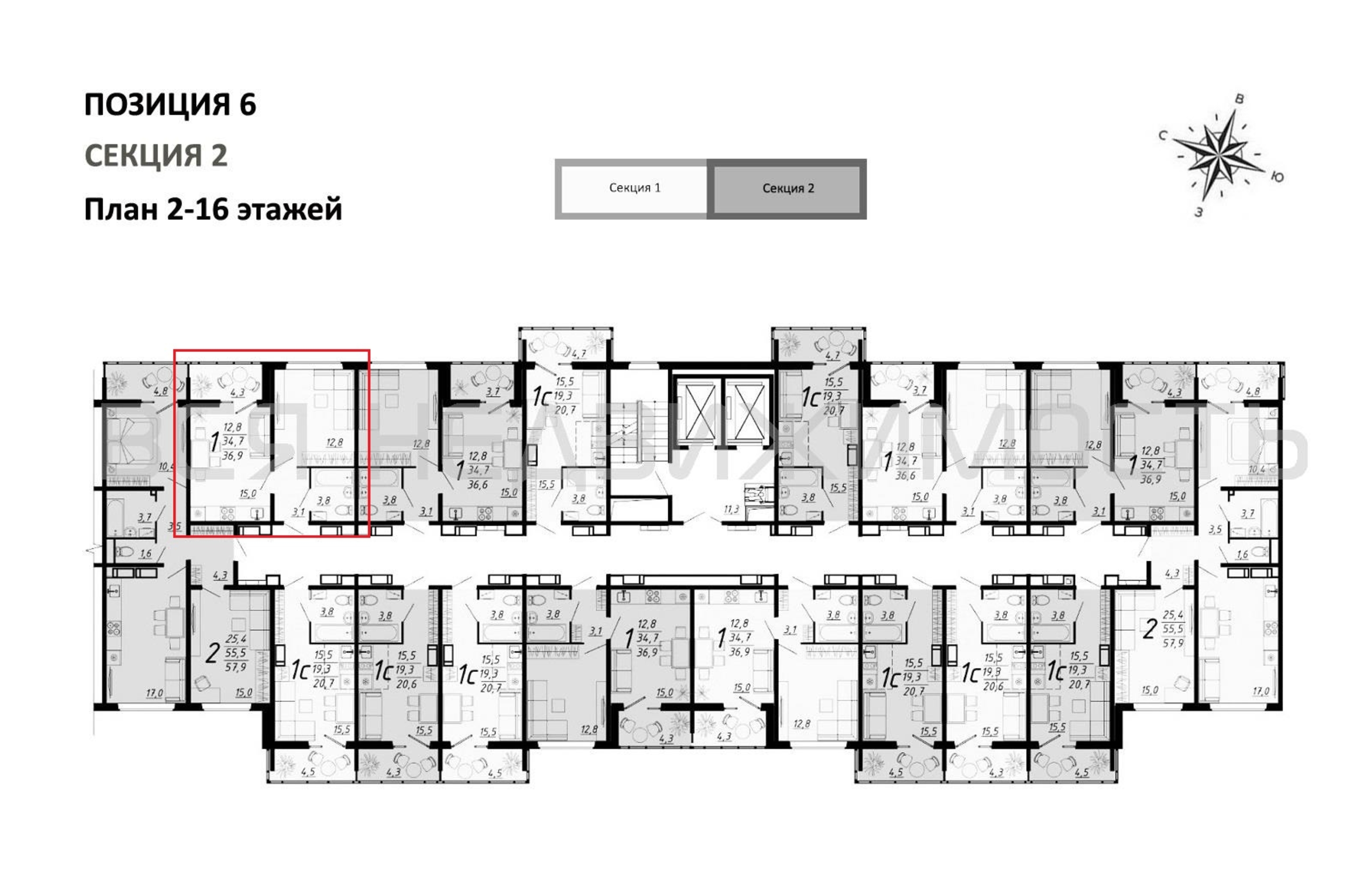
1-комнатная квартира, 36.90 м² 4/17 этаж ID объекта 100123158
Воронеж, Труда пр-кт, д. 93
Инфраструктура поблизости
Цена за наличные:
5 475 094 ₽
157 784 ₽/м²
Базовая цена:
6 354 179 ₽
Семейная ипотека
от 26 261 ₽/мес
Ипотека
от 64 043 ₽/мес
? Расчет цены приблизительный, за более точной информацией обращайтесь к менеджеру
Тип сделкиПервичная продажа
Общая площадь34.70 м²
Строительная площадь36.90 м²
Жилая площадь12.80 м²
Площадь кухни15.00 м²
Высота потолков2.60 м
ОтделкаЧистовая отделка
Покрытие полаЛаминат
СанузелСовмещенный
КладовкаНет
ЛифтДа
Изолированные комнатыДа
Онлайн показДа



