2-комнатная квартира, 57.90 м² 12/17 этаж ID объекта 100123276
Воронеж, Труда пр-кт, д. 93
Инфраструктура поблизости
Цена за наличные:
7 932 725 ₽
142 932 ₽/м²
Базовая цена:
9 211 890 ₽
Семейная ипотека
от 38 049 ₽/мес
Ипотека
от 92 790 ₽/мес
? Расчет цены приблизительный, за более точной информацией обращайтесь к менеджеру
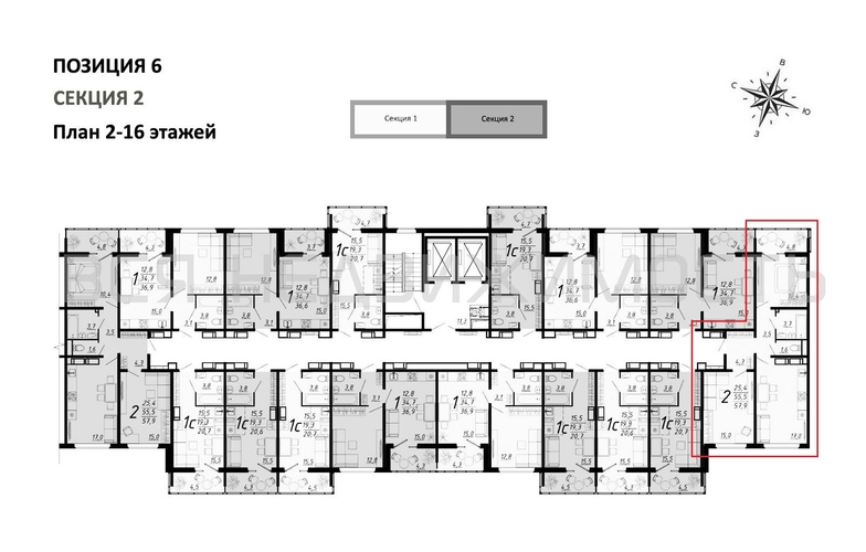
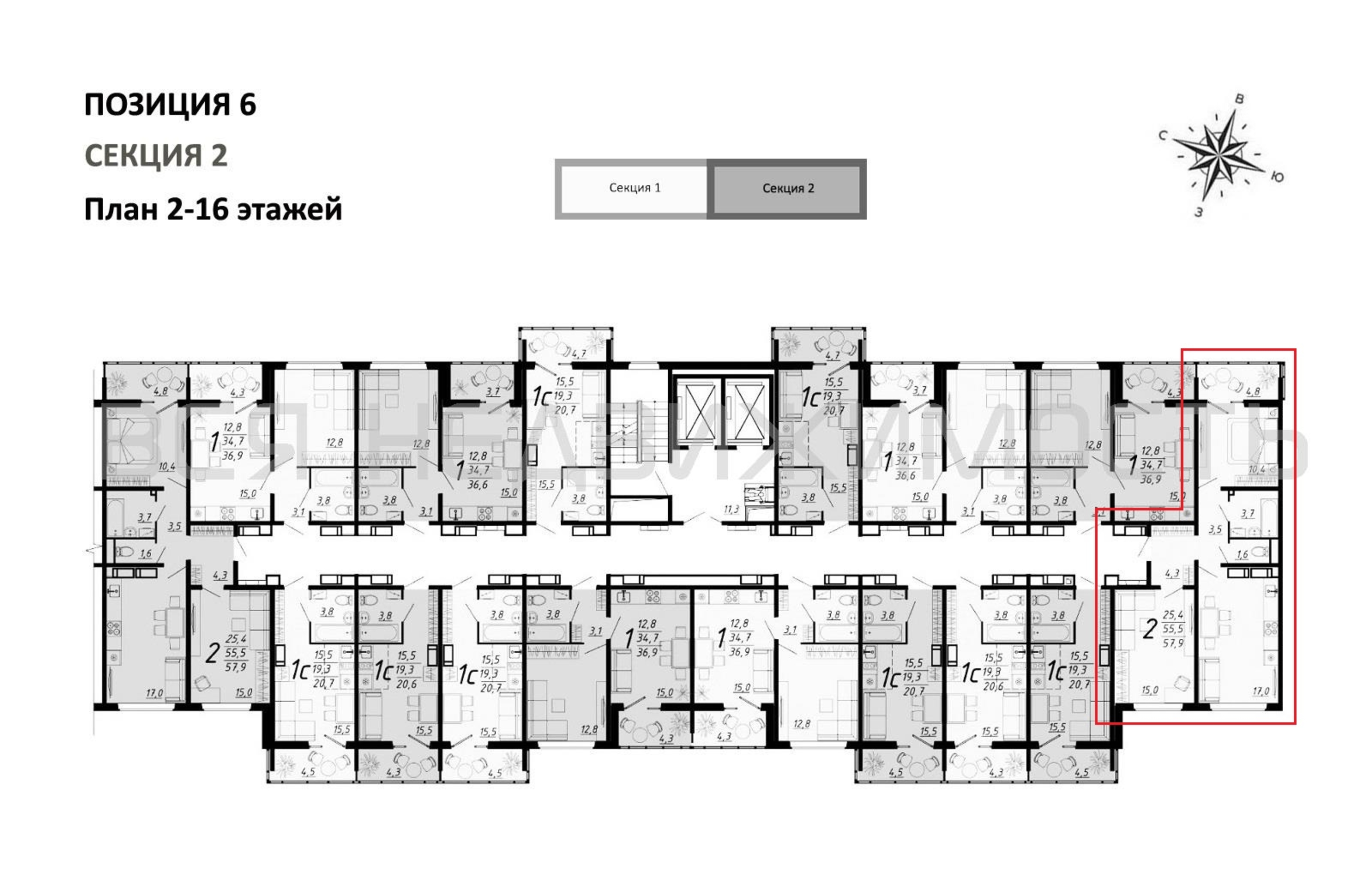
КорпусПозиция 6
Срок сдачи4 кв 2026
Тип домаПанельный
Этаж12/17
№ Квартиры450
Тип сделкиПервичная продажа
Общая площадь55.50 м²
Строительная площадь57.90 м²
Жилая площадь25.40 м²
Площадь кухни17.00 м²
Высота потолков2.60 м
ОтделкаЧистовая отделка
Покрытие полаЛаминат
СанузелРаздельный
КладовкаНет
ЛифтДа
Изолированные комнатыДа
Онлайн показДа



