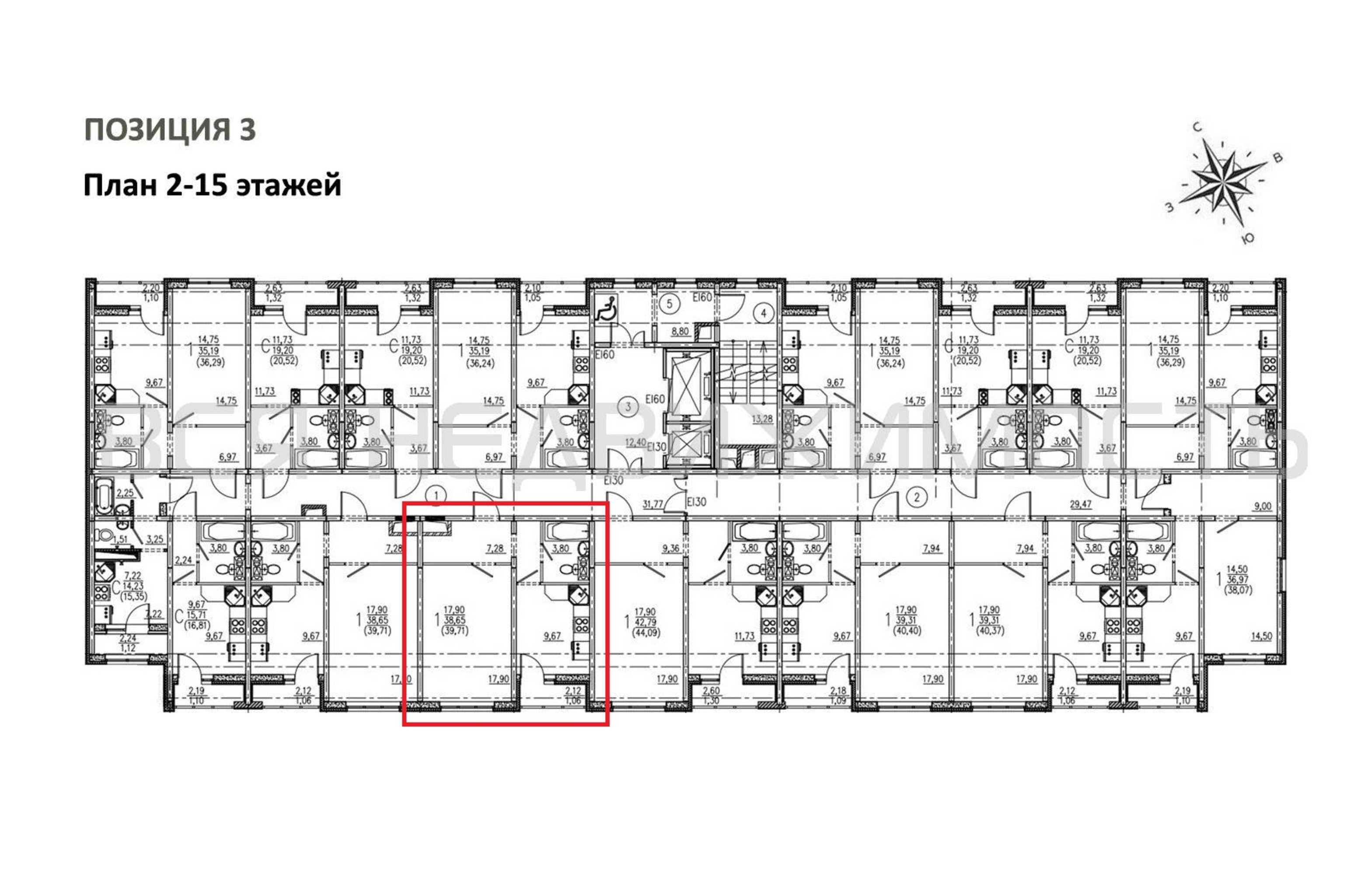
1-комнатная квартира, 39.71 м² 14/15 этаж ID объекта 100058221
Воронеж, Ростовская ул., д. 18а к.1
Инфраструктура поблизости
График стоимости
Базовая цена:
4 439 000 ₽
114 851 ₽/м²
Семейная ипотека
от 21 291 ₽/мес
Ипотека
от 51 924 ₽/мес
? Расчет цены приблизительный, за более точной информацией обращайтесь к менеджеру
КорпусЭтап 1 позиция 3
Срок сдачи3 кв 2025
Тип домаМонолитный
Этаж14/15
№ Квартиры201
Тип сделкиПервичная продажа
Общая площадь38.65 м²
Строительная площадь39.71 м²
Жилая площадь17.90 м²
Площадь кухни9.67 м²
Высота потолков2.80 м
ОтделкаЧерновая отделка
СанузелСовмещенный
КладовкаНет
ЛифтДа
Изолированные комнатыДа
Онлайн показДа



