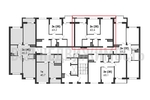
2-комнатная квартира, 62.60 м² 3/10 этаж ID объекта 100067500
Воронеж, Содружества б-р, д. 1
Инфраструктура поблизости
График стоимости
Цена за наличные:
7 289 770 ₽
119 114 ₽/м²
Базовая цена:
8 576 200 ₽
Семейная ипотека
от 34 965 ₽/мес
Ипотека
от 85 269 ₽/мес
? Расчет цены приблизительный, за более точной информацией обращайтесь к менеджеру
Тип сделкиПервичная продажа
Общая площадь61.20 м²
Строительная площадь62.60 м²
Жилая площадь28.50 м²
Площадь кухни16.50 м²
Высота потолков2.74 м
ОтделкаПредчистовая отделка
СанузелНесколько
КладовкаНет
ЛифтДа
Изолированные комнатыДа
Онлайн показДа



