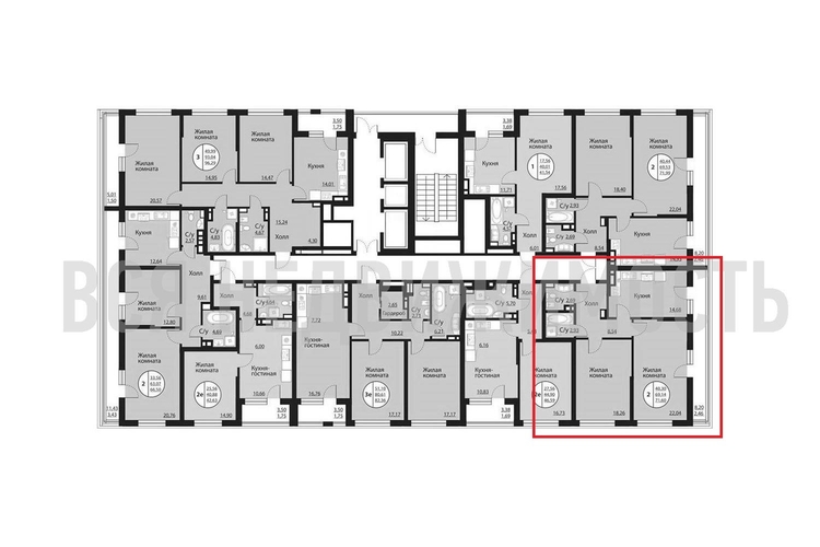
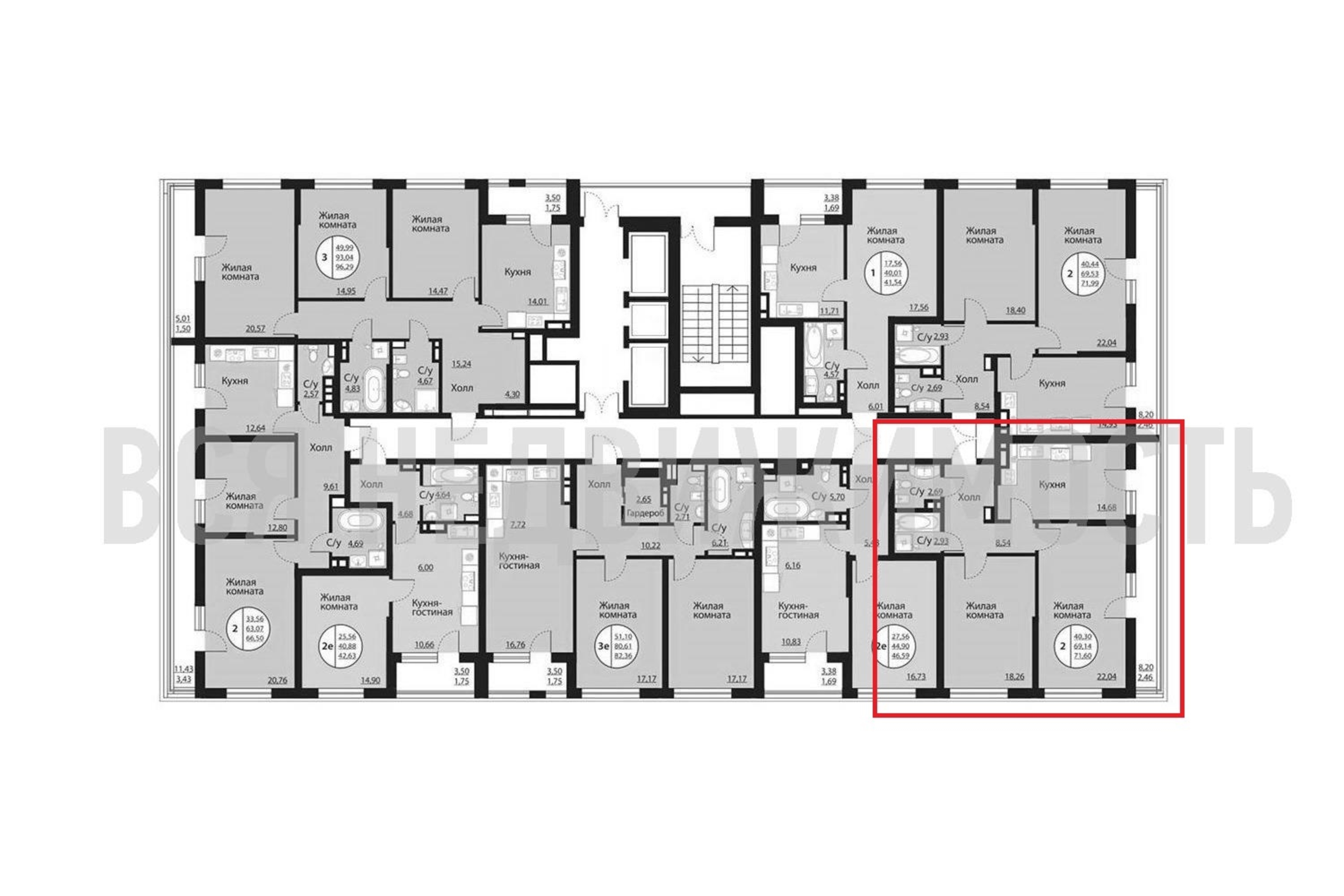
2-комнатная квартира, 71.60 м² 14/19 этаж ID объекта 100069384
Воронеж, Московский пр-кт, д. 132
Инфраструктура поблизости
Базовая цена:
11 295 902 ₽
163 377 ₽/м²
Семейная ипотека
от 54 180 ₽/мес
Ипотека
от 132 130 ₽/мес
? Расчет цены приблизительный, за более точной информацией обращайтесь к менеджеру
ЖКЖК Бунин
КорпусОчередь 3 секции 6-7
Срок сдачи2 кв 2025
Тип домаМонолитный
Этаж14/19
№ Квартиры669
Тип сделкиПервичная продажа
Общая площадь69.14 м²
Строительная площадь71.60 м²
Жилая площадь40.30 м²
Площадь кухни14.68 м²
Высота потолков2.72 м
ОтделкаПредчистовая отделка
Покрытие полаНет
СанузелРаздельный
БалконБалкон
КладовкаНет
ЛифтДа
Изолированные комнатыДа
Онлайн показДа



