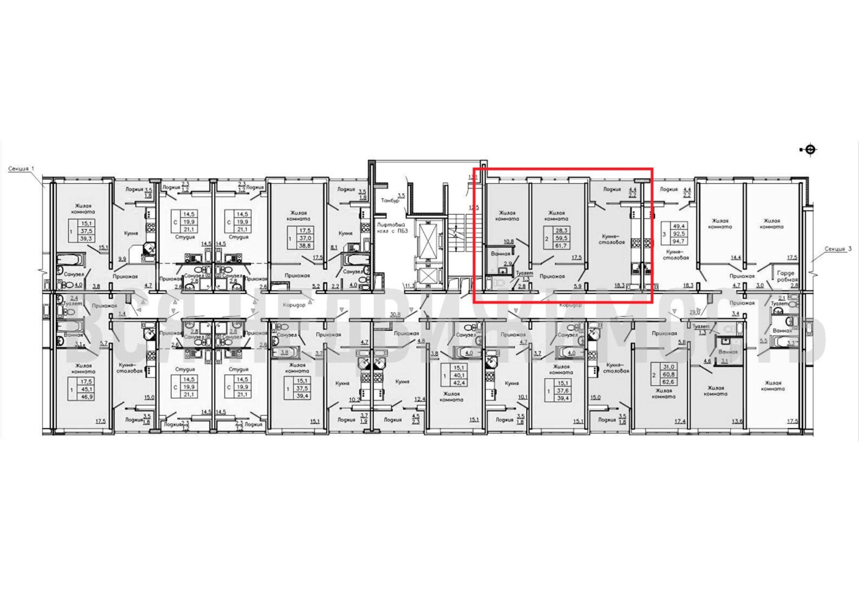
2-комнатная квартира, 61.70 м² 17/18 этаж ID объекта 100074000
Воронеж, Федора Тютчева ул., д. 105
Инфраструктура поблизости
График стоимости
Базовая цена:
7 130 557 ₽
119 841 ₽/м²
Семейная ипотека
от 34 201 ₽/мес
Ипотека
от 83 407 ₽/мес
? Расчет цены приблизительный, за более точной информацией обращайтесь к менеджеру
КорпусПозиция 29 очередь 2 секция 3
Срок сдачи4 кв 2024
Тип домаМонолитно-блочный
Этаж17/18
№ Квартиры384
Тип сделкиПервичная продажа
Общая площадь59.50 м²
Строительная площадь61.70 м²
Жилая площадь28.30 м²
Площадь кухни18.30 м²
Высота потолков2.56 м
ОтделкаПредчистовая отделка
СанузелРаздельный
КладовкаНет
ЛифтДа
Изолированные комнатыДа
Онлайн показДа



