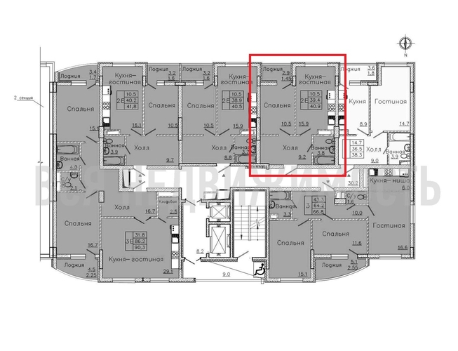
1-комнатная квартира, 40.90 м² 6/18 этаж ID объекта 100078734
Воронеж, Федора Тютчева ул., д. 93/4
Инфраструктура поблизости
График стоимости
Базовая цена:
4 670 499 ₽
118 541 ₽/м²
Семейная ипотека
от 22 402 ₽/мес
Ипотека
от 54 631 ₽/мес
? Расчет цены приблизительный, за более точной информацией обращайтесь к менеджеру
КорпусПозиция 19 очередь 3 секции 4-5
Срок сдачи4 кв 2026
Тип домаМонолитно-блочный
Этаж6/18
№ Квартиры412
Тип сделкиПервичная продажа
Общая площадь39.40 м²
Строительная площадь40.90 м²
Жилая площадь10.50 м²
Площадь кухни15.90 м²
Высота потолков2.72 м
ОтделкаПредчистовая отделка
СанузелСовмещенный
КладовкаНет
ЛифтДа
Изолированные комнатыДа
Онлайн показДа



