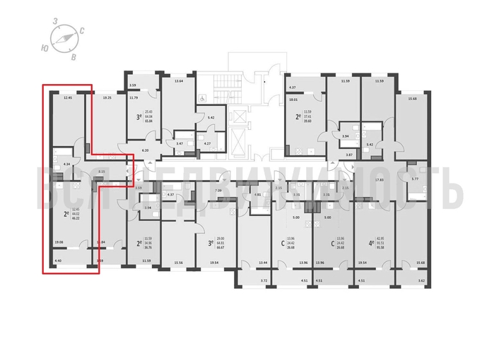
1-комнатная квартира, 46.22 м² 10/16 этаж ID объекта 100080311
Воронеж, Краснознаменная ул., д. 72
Инфраструктура поблизости
График стоимости
Базовая цена:
8 643 140 ₽
196 346 ₽/м²
Семейная ипотека
от 41 456 ₽/мес
Ипотека
от 101 100 ₽/мес
? Расчет цены приблизительный, за более точной информацией обращайтесь к менеджеру
КорпусЖД на Краснознаменной
Срок сдачи4 кв 2025
Тип домаПанельный
Этаж10/16
№ Квартиры162
Тип сделкиПервичная продажа
Общая площадь44.02 м²
Строительная площадь46.22 м²
Жилая площадь12.45 м²
Площадь кухни19.08 м²
Высота потолков2.64 м
ОтделкаЧерновая отделка
СанузелСовмещенный
КладовкаНет
ЛифтДа
Изолированные комнатыДа
Онлайн показДа



