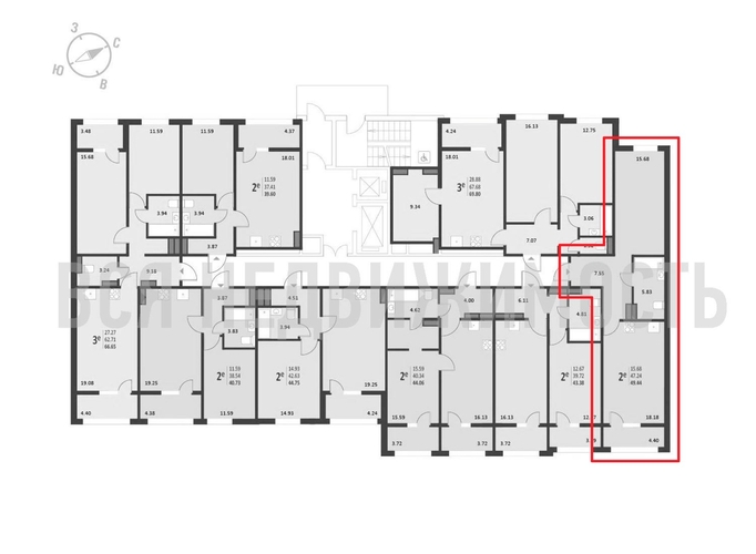
1-комнатная квартира, 49.38 м² 2/12 этаж ID объекта 100080502
Воронеж, Краснознаменная ул., д. 72
Инфраструктура поблизости
График стоимости
Базовая цена:
8 715 570 ₽
184 496 ₽/м²
Семейная ипотека
от 41 803 ₽/мес
Ипотека
от 101 947 ₽/мес
? Расчет цены приблизительный, за более точной информацией обращайтесь к менеджеру
КорпусЖД на Краснознаменной
Срок сдачи4 кв 2025
Тип домаПанельный
Этаж2/12
№ Квартиры213
Тип сделкиПервичная продажа
Общая площадь47.24 м²
Строительная площадь49.38 м²
Жилая площадь15.68 м²
Площадь кухни18.18 м²
Высота потолков2.64 м
ОтделкаЧерновая отделка
СанузелСовмещенный
КладовкаНет
ЛифтДа
Изолированные комнатыДа
Онлайн показДа



