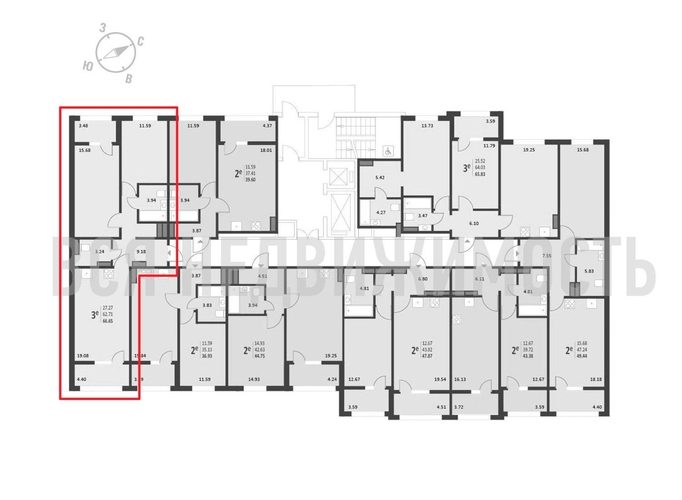
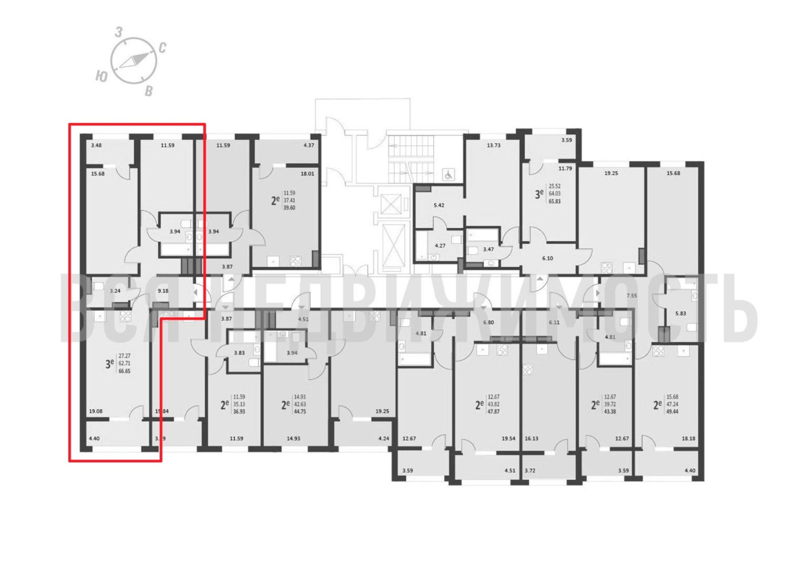
2-комнатная квартира, 66.65 м² 18/18 этаж ID объекта 100080659
Воронеж, Краснознаменная ул., д. 72
Инфраструктура поблизости
Базовая цена:
11 963 675 ₽
190 778 ₽/м²
Семейная ипотека
от 57 383 ₽/мес
Ипотека
от 139 941 ₽/мес
? Расчет цены приблизительный, за более точной информацией обращайтесь к менеджеру
КорпусЖД на Краснознаменной
Срок сдачи4 кв 2025
Тип домаПанельный
Этаж18/18
№ Квартиры434
Тип сделкиПервичная продажа
Общая площадь62.71 м²
Строительная площадь66.65 м²
Жилая площадь27.27 м²
Площадь кухни19.08 м²
Высота потолков2.64 м
ОтделкаПредчистовая отделка
СанузелНесколько
Балкон2 лоджии
КладовкаНет
ЛифтДа
Изолированные комнатыДа
Онлайн показДа



