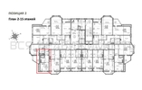
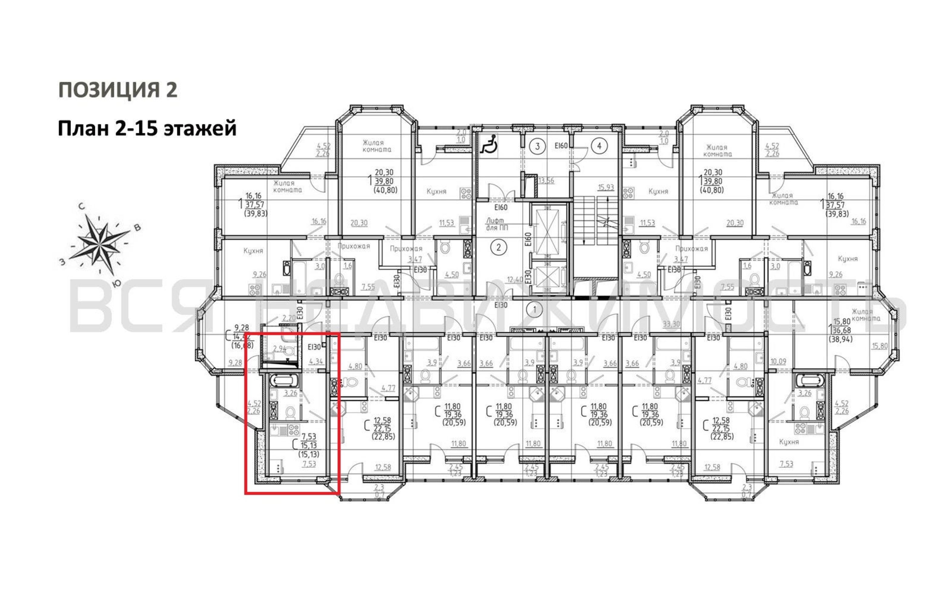
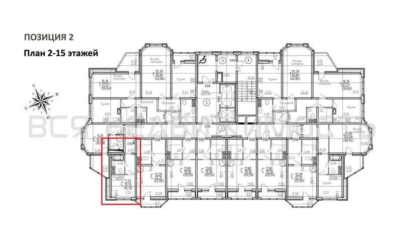
Квартиры-студии, 15.13 м² 15/15 этаж ID объекта 100082064
Воронеж, Ростовская ул., д. 18а
Инфраструктура поблизости
График стоимости
Базовая цена:
2 018 342 ₽
133 400 ₽/м²
Семейная ипотека
от 9 681 ₽/мес
Ипотека
от 23 609 ₽/мес
? Расчет цены приблизительный, за более точной информацией обращайтесь к менеджеру
КорпусЭтап 2 позиция 2
Срок сдачи4 кв 2025
Тип домаМонолитный
Этаж15/15
№ Квартиры388
Тип сделкиПервичная продажа
Общая площадь15.13 м²
Строительная площадь15.13 м²
Жилая площадь7.53 м²
Площадь кухни2.00 м²
Высота потолков2.80 м
ОтделкаЧерновая отделка
СанузелСовмещенный
БалконНет
КладовкаНет
ЛифтДа
Изолированные комнатыДа
Онлайн показДа



