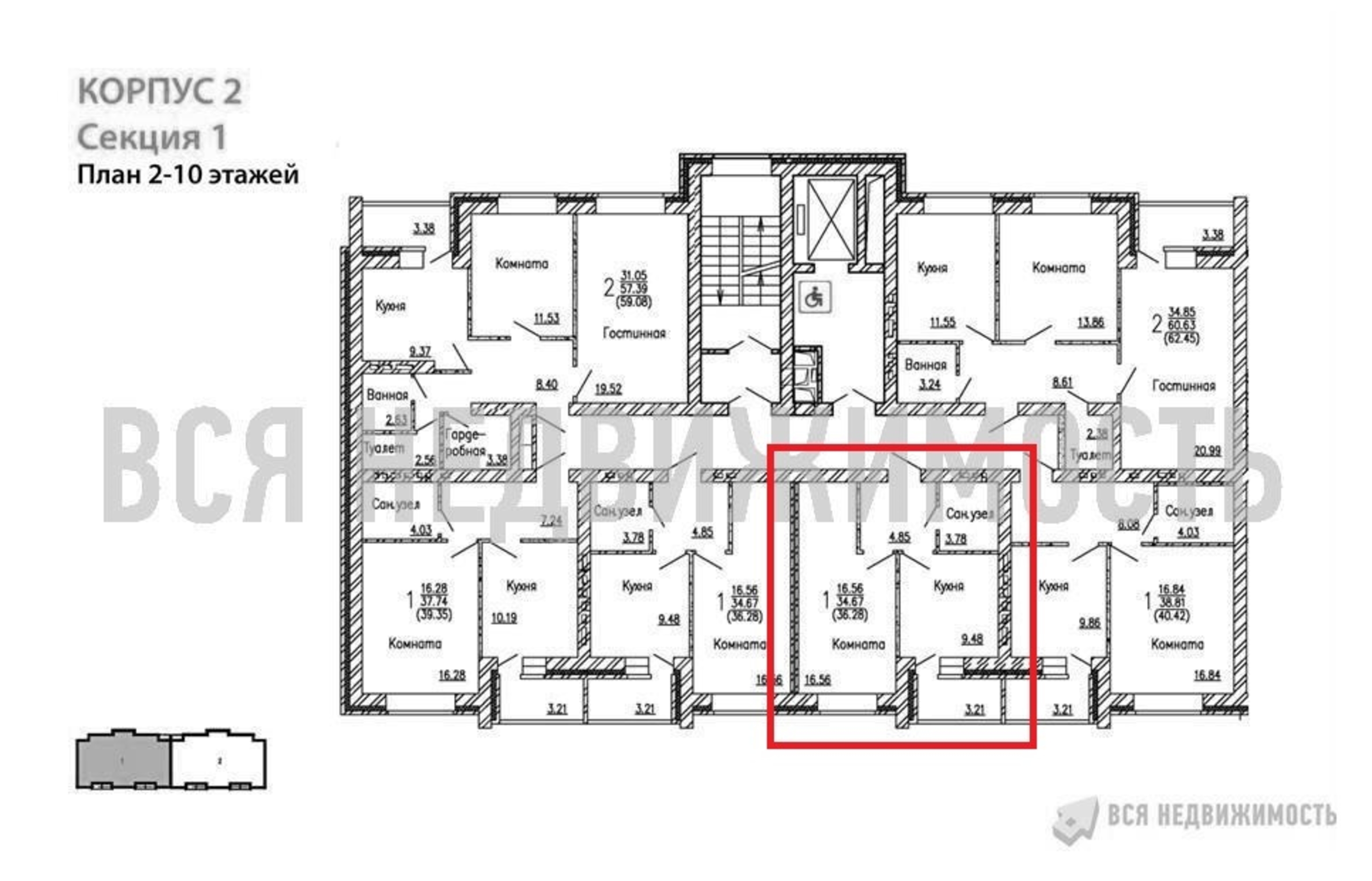
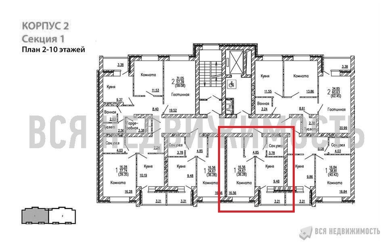
1-комнатная квартира, 36.28 м² 9/10 этаж ID объекта 100083361
Воронеж, Курчатова ул., д. 32
Инфраструктура поблизости
График стоимости
Базовая цена:
3 157 700 ₽
91 079 ₽/м²
Семейная ипотека
от 15 146 ₽/мес
Ипотека
от 36 936 ₽/мес
? Расчет цены приблизительный, за более точной информацией обращайтесь к менеджеру
Тип сделкиПервичная продажа
Общая площадь34.67 м²
Строительная площадь36.28 м²
Жилая площадь16.56 м²
Площадь кухни9.48 м²
Высота потолков2.78 м
ОтделкаЧерновая отделка
СанузелСовмещенный
КладовкаНет
ЛифтДа
Изолированные комнатыДа
Онлайн показДа



