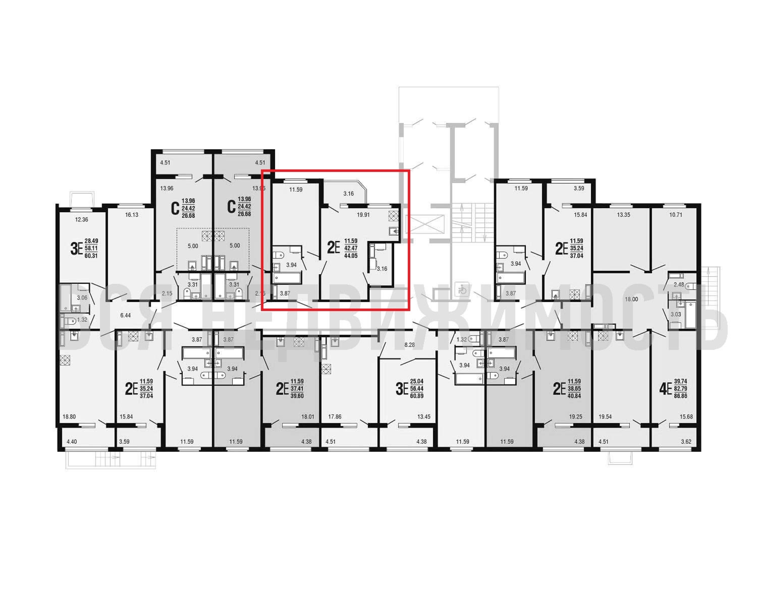
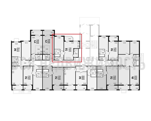
1-комнатная квартира, 44.20 м² 1/10 этаж ID объекта 100084157
с. Новая Усмань, Художников б-р, д. 4
Инфраструктура поблизости
График стоимости
Базовая цена:
5 197 900 ₽
122 016 ₽/м²
Семейная ипотека
от 24 931 ₽/мес
Ипотека
от 60 801 ₽/мес
? Расчет цены приблизительный, за более точной информацией обращайтесь к менеджеру
КорпусПозиция 12
Срок сдачи1 кв 2025
Тип домаПанельный
Этаж1/10
№ Квартиры10
Тип сделкиПервичная продажа
Общая площадь42.60 м²
Строительная площадь44.20 м²
Жилая площадь11.59 м²
Площадь кухни19.91 м²
Высота потолков2.64 м
ОтделкаПредчистовая отделка
СанузелСовмещенный
КладовкаНет
ЛифтДа
Изолированные комнатыДа
Онлайн показДа



