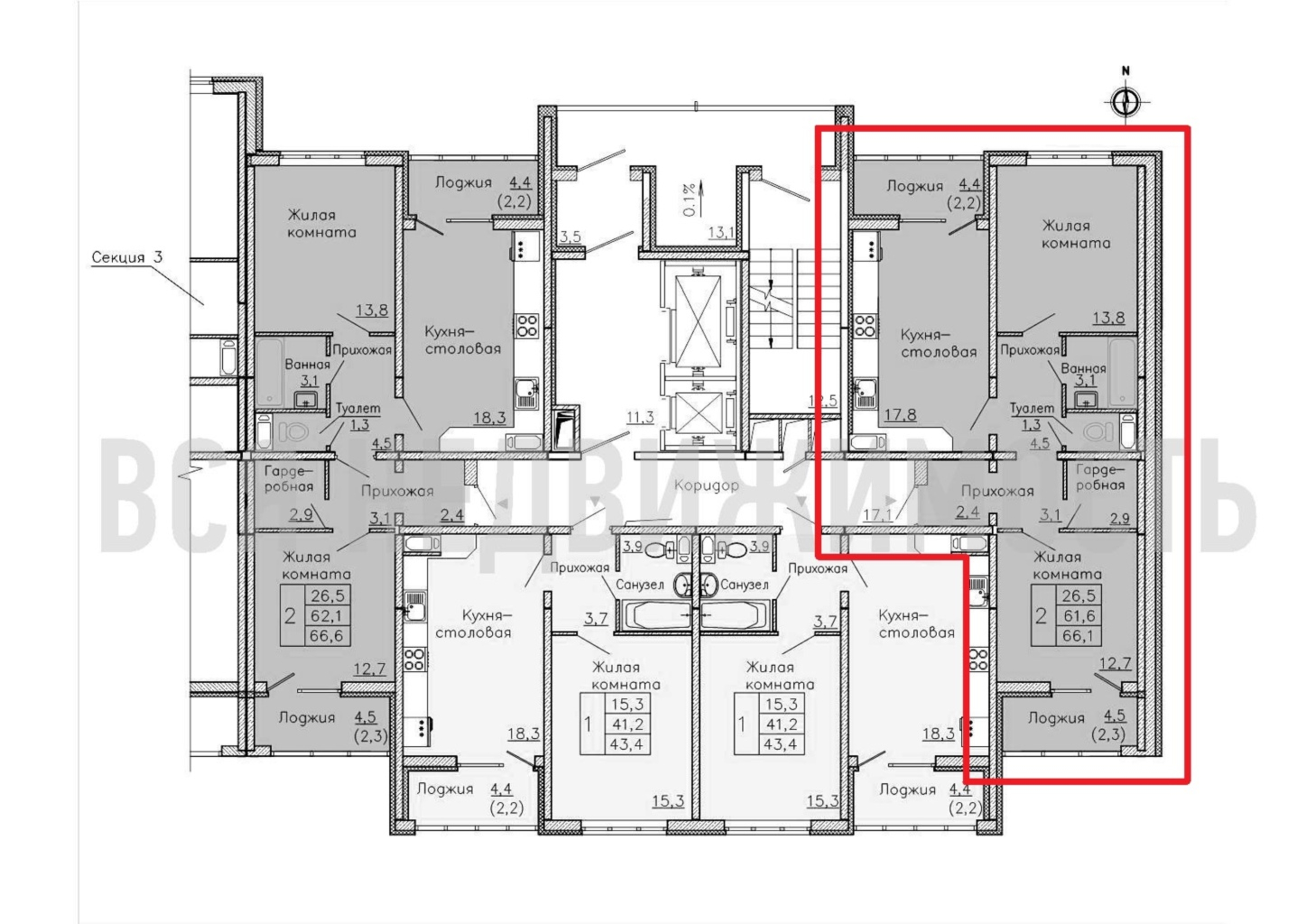
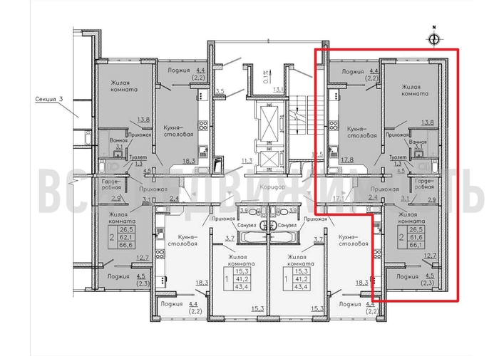
2-комнатная квартира, 66.10 м² 2/18 этаж ID объекта 100086537
Воронеж, Федора Тютчева ул., д. 105
Инфраструктура поблизости
График стоимости
Базовая цена:
7 225 932 ₽
117 304 ₽/м²
Семейная ипотека
от 34 658 ₽/мес
Ипотека
от 84 523 ₽/мес
? Расчет цены приблизительный, за более точной информацией обращайтесь к менеджеру
КорпусПозиция 29 очередь 3 секции 1-2
Срок сдачи3 кв 2026
Тип домаМонолитно-блочный
Этаж2/18
№ Квартиры3
Тип сделкиПервичная продажа
Общая площадь61.60 м²
Строительная площадь66.10 м²
Жилая площадь26.50 м²
Площадь кухни17.80 м²
Высота потолков2.56 м
ОтделкаПредчистовая отделка
СанузелРаздельный
Балкон2 лоджии
КладовкаДа
ЛифтДа
Изолированные комнатыДа
Онлайн показДа



