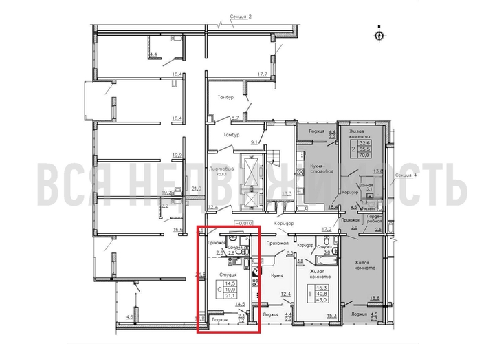
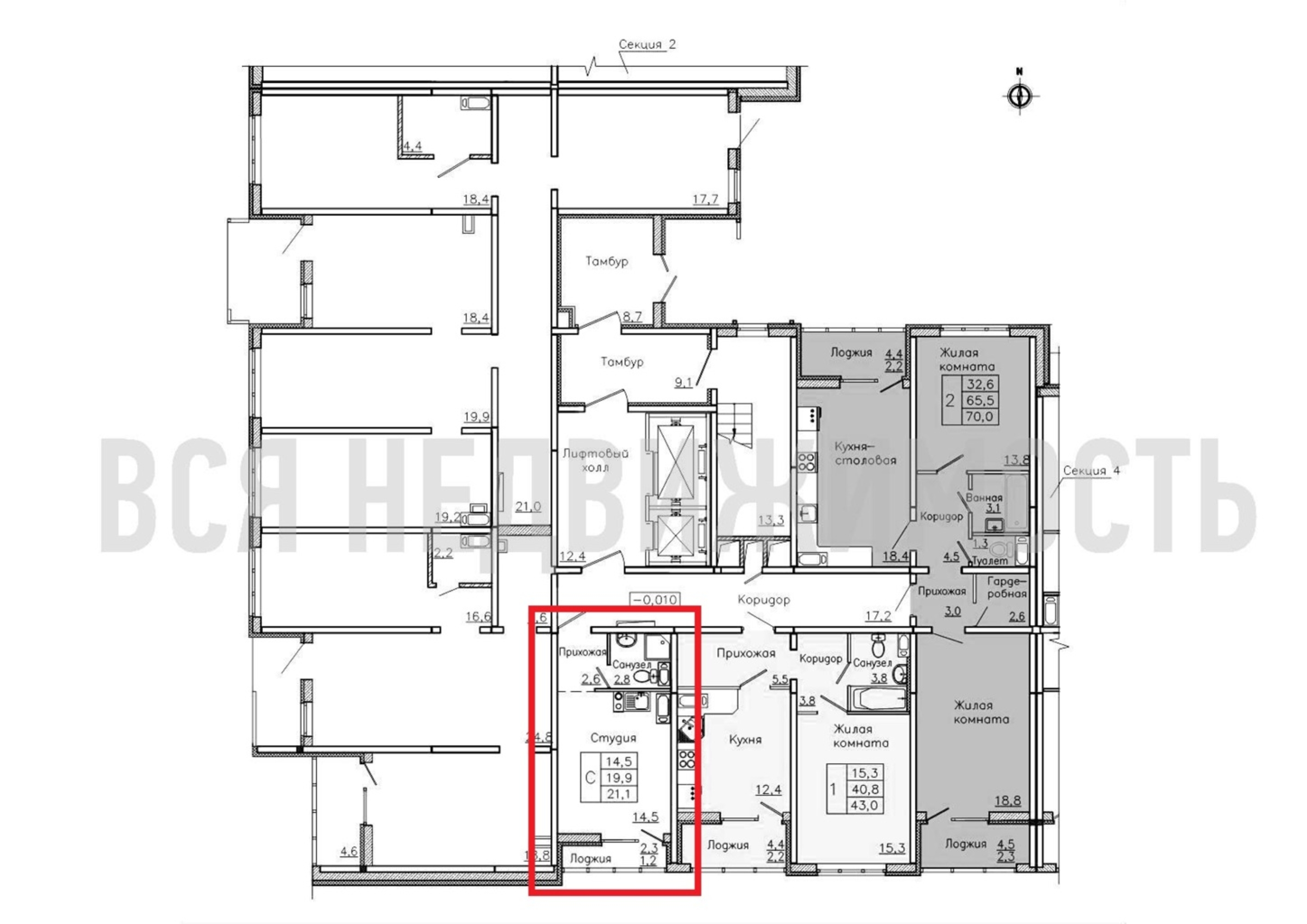
Квартиры-студии, 21.10 м² 1/18 этаж ID объекта 100086655
Воронеж, Федора Тютчева ул., д. 105
Инфраструктура поблизости
График стоимости
Базовая цена:
2 889 261 ₽
145 189 ₽/м²
Семейная ипотека
от 13 858 ₽/мес
Ипотека
от 33 796 ₽/мес
? Расчет цены приблизительный, за более точной информацией обращайтесь к менеджеру
КорпусПозиция 29 очередь 3 секции 1-2
Срок сдачи3 кв 2026
Тип домаМонолитно-блочный
Этаж1/18
№ Квартиры73
Тип сделкиПервичная продажа
Общая площадь19.90 м²
Строительная площадь21.10 м²
Жилая площадь14.50 м²
Площадь кухни3.00 м²
Высота потолков2.56 м
ОтделкаПредчистовая отделка
СанузелСовмещенный
КладовкаНет
ЛифтДа
Изолированные комнатыДа
Онлайн показДа



