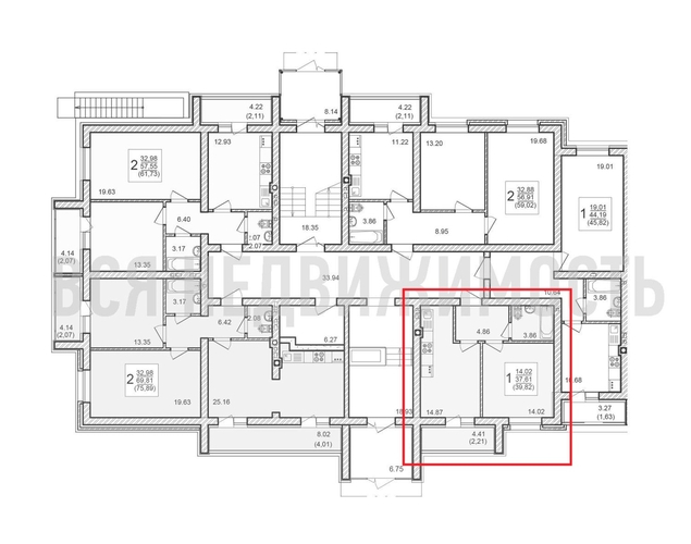
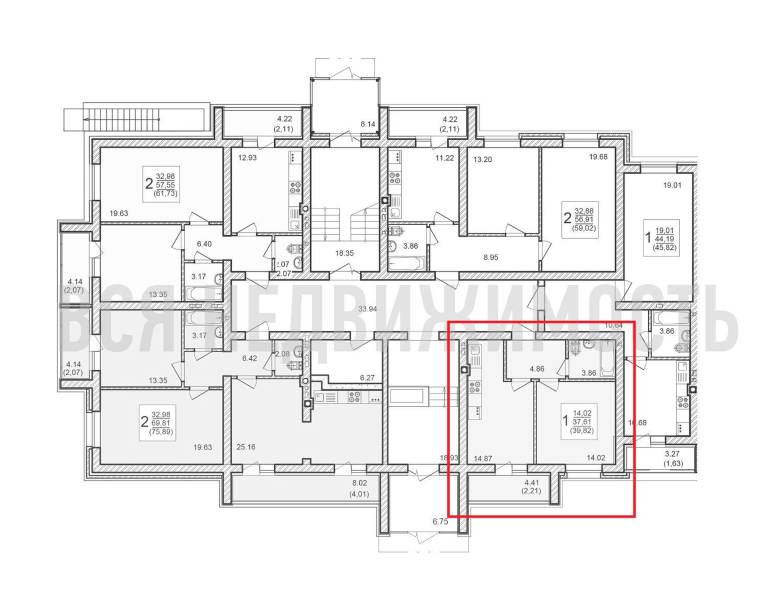
1-комнатная квартира, 39.82 м² 1/4 этаж ID объекта 100088343
с. Александровка, Акварельная ул.
Инфраструктура поблизости
График стоимости
Базовая цена:
4 977 500 ₽
132 345 ₽/м²
Семейная ипотека
от 23 874 ₽/мес
Ипотека
от 58 222 ₽/мес
? Расчет цены приблизительный, за более точной информацией обращайтесь к менеджеру
Тип сделкиПервичная продажа
Общая площадь37.61 м²
Строительная площадь39.82 м²
Жилая площадь14.02 м²
Площадь кухни14.87 м²
Высота потолков3.00 м
ОтделкаЧистовая отделка
Покрытие полаЛинолеум
СанузелСовмещенный
КладовкаНет
ЛифтНет
Изолированные комнатыДа
Онлайн показДа



