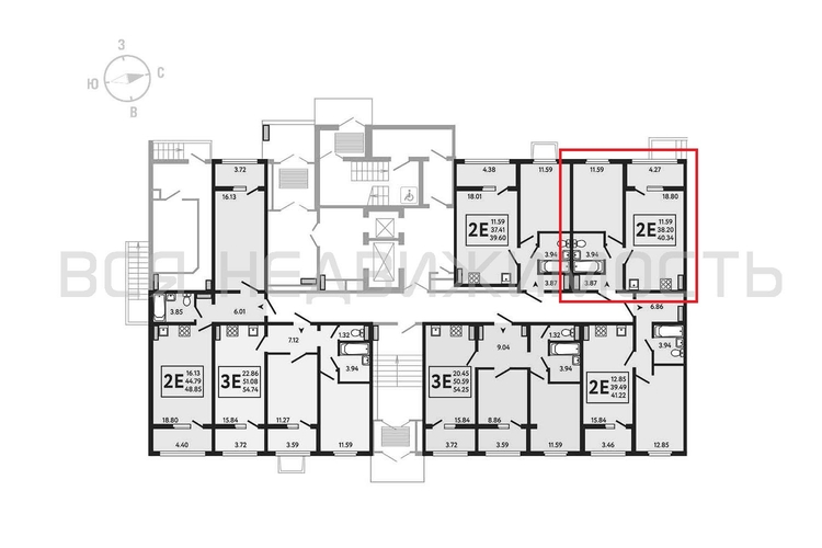
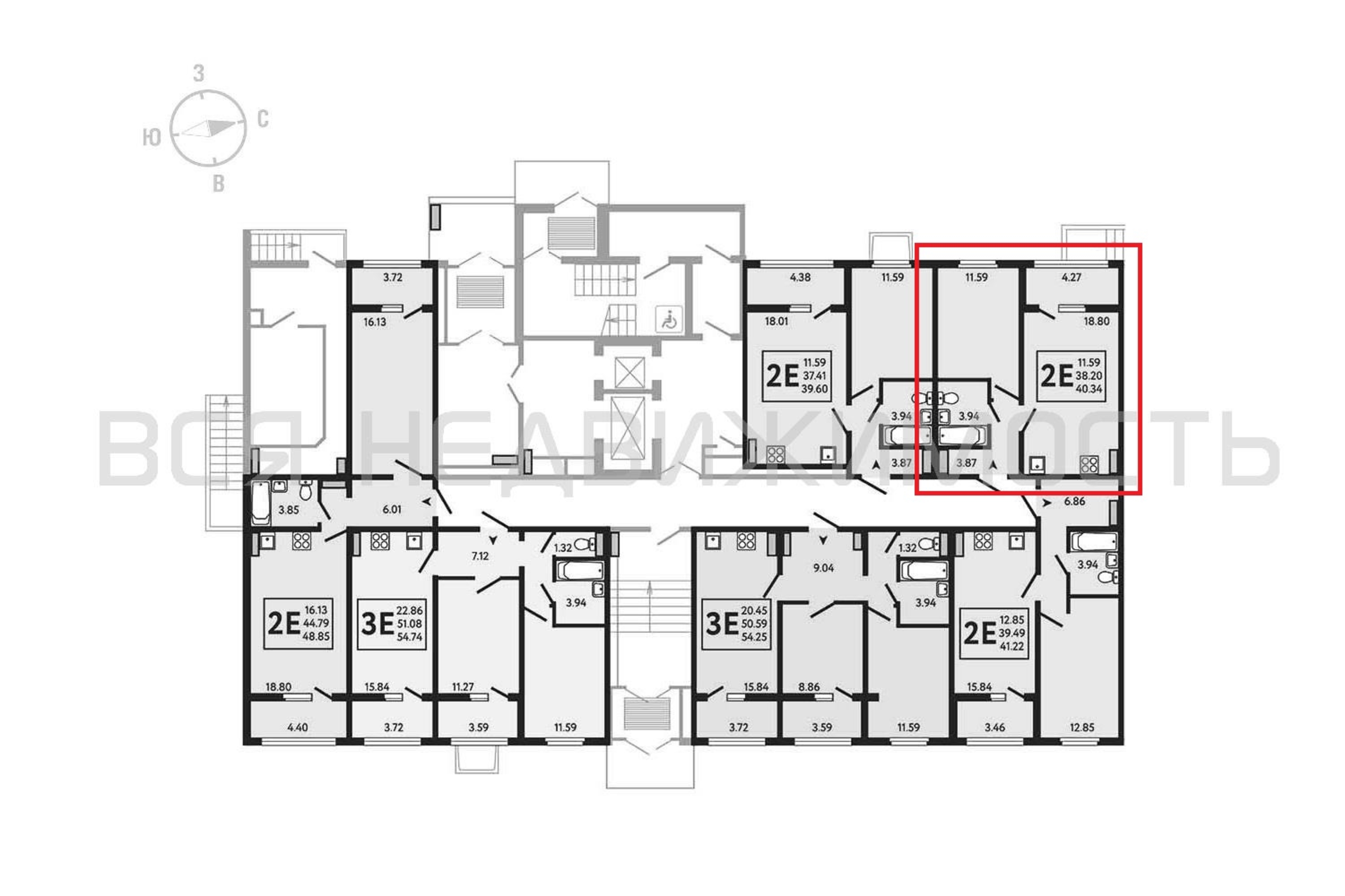
1-комнатная квартира, 40.34 м² 1/14 этаж ID объекта 100092932
с. Новая Усмань, Алмазная ул.,
Инфраструктура поблизости
График стоимости
Базовая цена:
4 356 720 ₽
114 050 ₽/м²
Семейная ипотека
от 20 897 ₽/мес
Ипотека
от 50 961 ₽/мес
? Расчет цены приблизительный, за более точной информацией обращайтесь к менеджеру
КорпусПозиция 13
Срок сдачи4 кв 2025
Тип домаПанельный
Этаж1/14
№ Квартиры177
Тип сделкиПервичная продажа
Общая площадь38.20 м²
Строительная площадь40.34 м²
Жилая площадь11.59 м²
Площадь кухни18.80 м²
Высота потолков2.64 м
ОтделкаПредчистовая отделка
СанузелСовмещенный
КладовкаНет
ЛифтДа
Изолированные комнатыДа
Онлайн показДа



