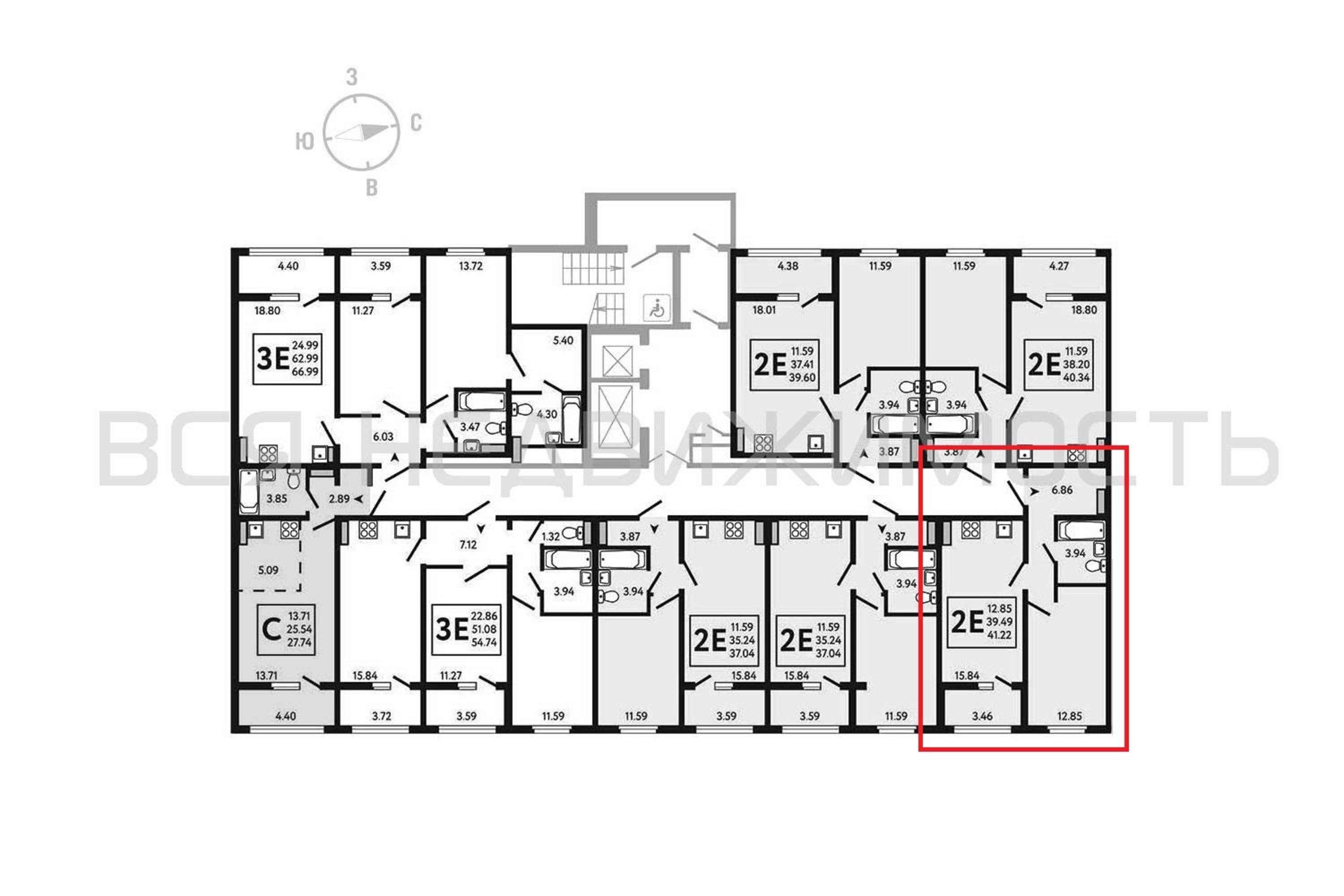
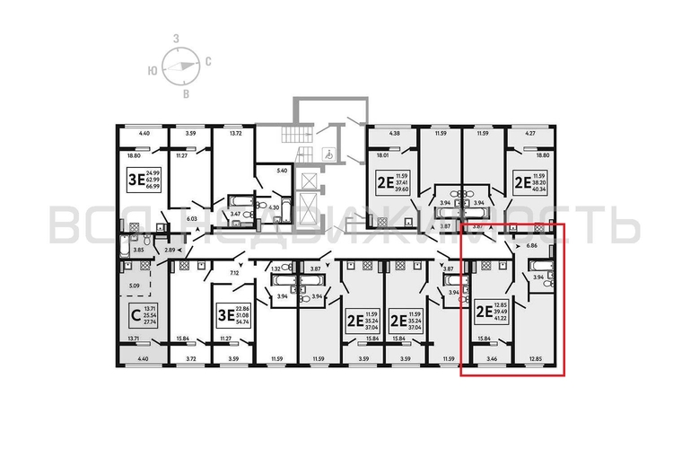
1-комнатная квартира, 41.22 м² 3/14 этаж ID объекта 100092979
с. Новая Усмань, Алмазная ул.,
Инфраструктура поблизости
График стоимости
Базовая цена:
4 451 760 ₽
112 731 ₽/м²
Семейная ипотека
от 21 352 ₽/мес
Ипотека
от 52 073 ₽/мес
? Расчет цены приблизительный, за более точной информацией обращайтесь к менеджеру
КорпусПозиция 13
Срок сдачи4 кв 2025
Тип домаПанельный
Этаж3/14
№ Квартиры192
Тип сделкиПервичная продажа
Общая площадь39.49 м²
Строительная площадь41.22 м²
Жилая площадь12.85 м²
Площадь кухни15.84 м²
Высота потолков2.64 м
ОтделкаПредчистовая отделка
СанузелСовмещенный
КладовкаНет
ЛифтДа
Изолированные комнатыДа
Онлайн показДа



