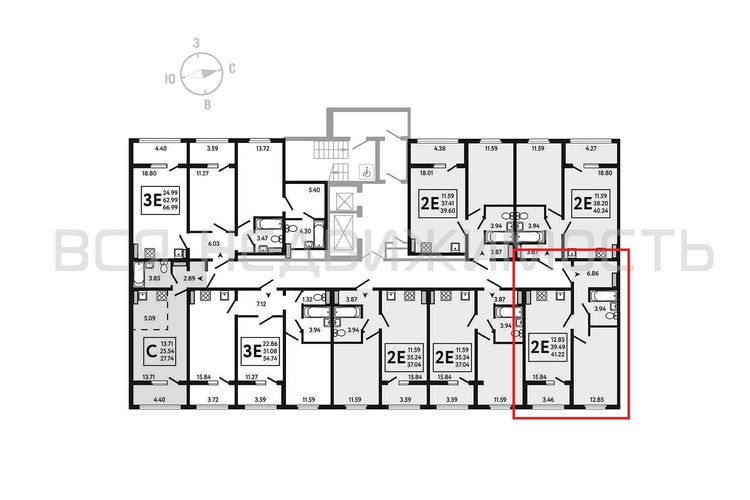
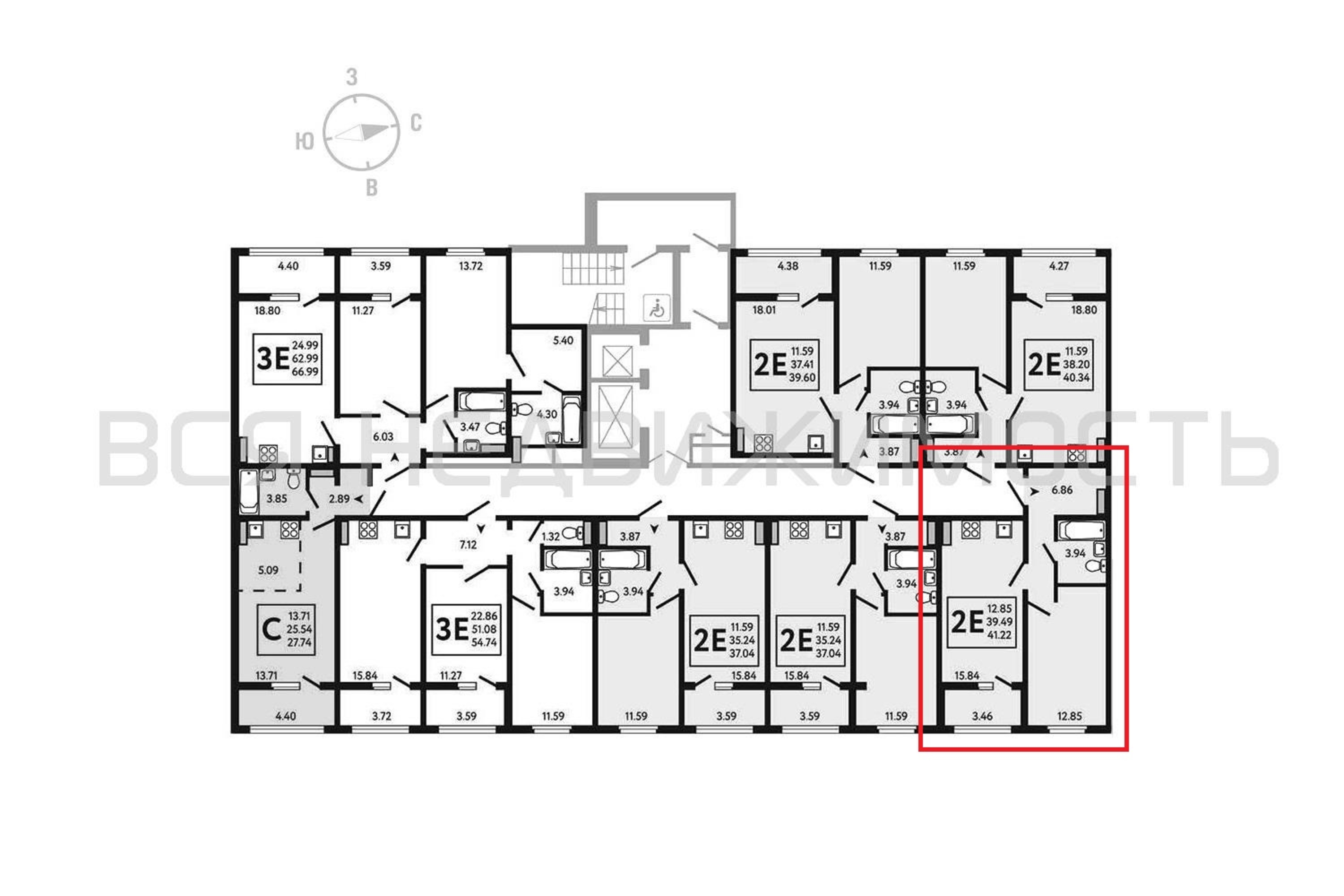
1-комнатная квартира, 41.22 м² 11/14 этаж ID объекта 100093041
с. Новая Усмань, Алмазная ул.,
Инфраструктура поблизости
График стоимости
Базовая цена:
4 348 710 ₽
110 122 ₽/м²
Семейная ипотека
от 20 858 ₽/мес
Ипотека
от 50 867 ₽/мес
? Расчет цены приблизительный, за более точной информацией обращайтесь к менеджеру
КорпусПозиция 13
Срок сдачи4 кв 2025
Тип домаПанельный
Этаж11/14
№ Квартиры256
Тип сделкиПервичная продажа
Общая площадь39.49 м²
Строительная площадь41.22 м²
Жилая площадь12.85 м²
Площадь кухни15.84 м²
Высота потолков2.64 м
ОтделкаПредчистовая отделка
СанузелСовмещенный
КладовкаНет
ЛифтДа
Изолированные комнатыДа
Онлайн показДа



