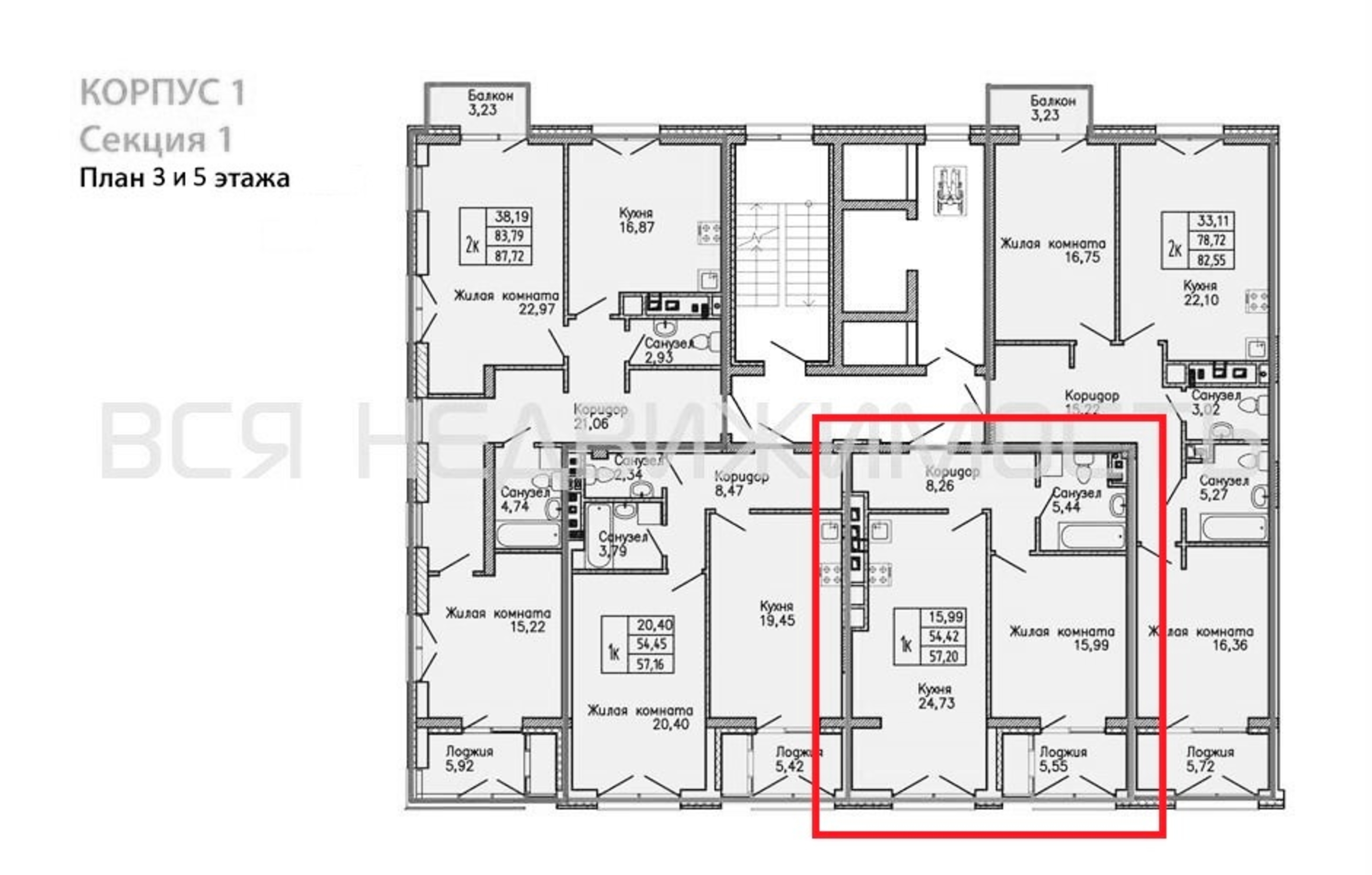
1-комнатная квартира, 57.20 м² 3/9 этаж ID объекта 100094308
Воронеж, Революции 1905 года ул., д. 14
Инфраструктура поблизости
График стоимости
Базовая цена:
14 633 108 ₽
268 892 ₽/м²
Семейная ипотека
от 70 186 ₽/мес
Ипотека
от 171 165 ₽/мес
? Расчет цены приблизительный, за более точной информацией обращайтесь к менеджеру
КорпусКлубный дом 905
Срок сдачи4 кв 2026
Тип домаМонолитно-кирпичный
Этаж3/9
№ Квартиры6
Тип сделкиПервичная продажа
Общая площадь54.42 м²
Строительная площадь57.20 м²
Жилая площадь15.99 м²
Площадь кухни24.73 м²
Высота потолков2.72 м
ОтделкаПредчистовая отделка
СанузелСовмещенный
КладовкаНет
ЛифтДа
Изолированные комнатыДа
Онлайн показДа



