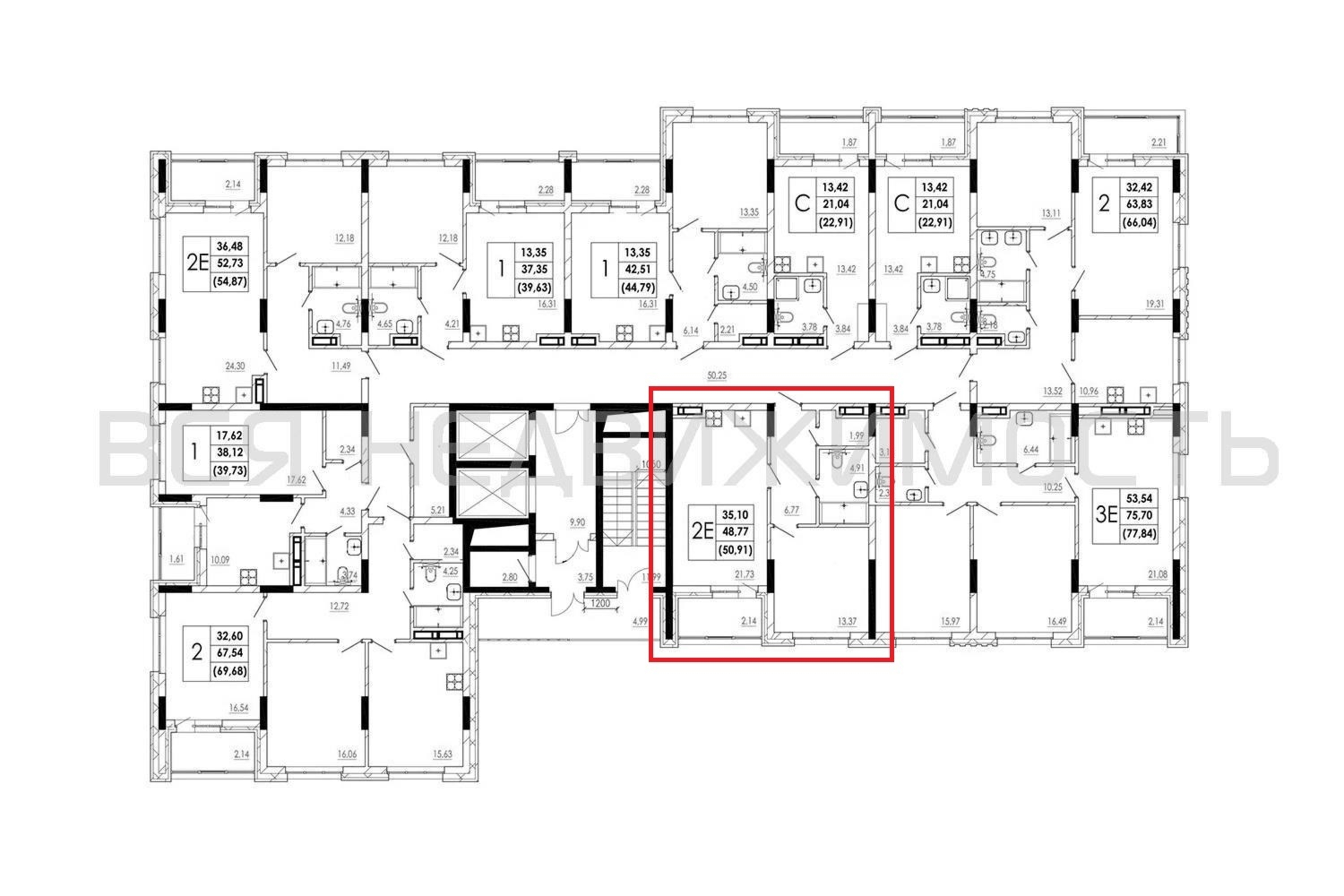
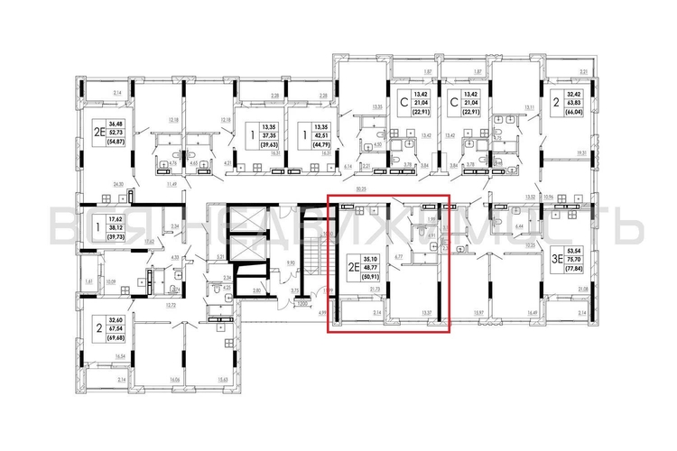
1-комнатная квартира, 50.91 м² 6/15 этаж ID объекта 100099070
Воронеж, Ленинградская ул., 120б
Инфраструктура поблизости
График стоимости
Цена за наличные:
6 275 000 ₽
125 500 ₽/м²
Базовая цена:
6 872 850 ₽
Семейная ипотека
от 30 097 ₽/мес
Ипотека
от 73 399 ₽/мес
? Расчет цены приблизительный, за более точной информацией обращайтесь к менеджеру
Тип сделкиПервичная продажа
Общая площадь50.00 м²
Строительная площадь50.91 м²
Жилая площадь13.37 м²
Площадь кухни21.73 м²
Высота потолков2.94 м
ОтделкаПредчистовая отделка
СанузелСовмещенный
КладовкаДа
ЛифтДа
Изолированные комнатыДа
Онлайн показДа



