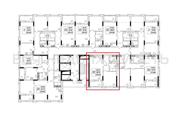
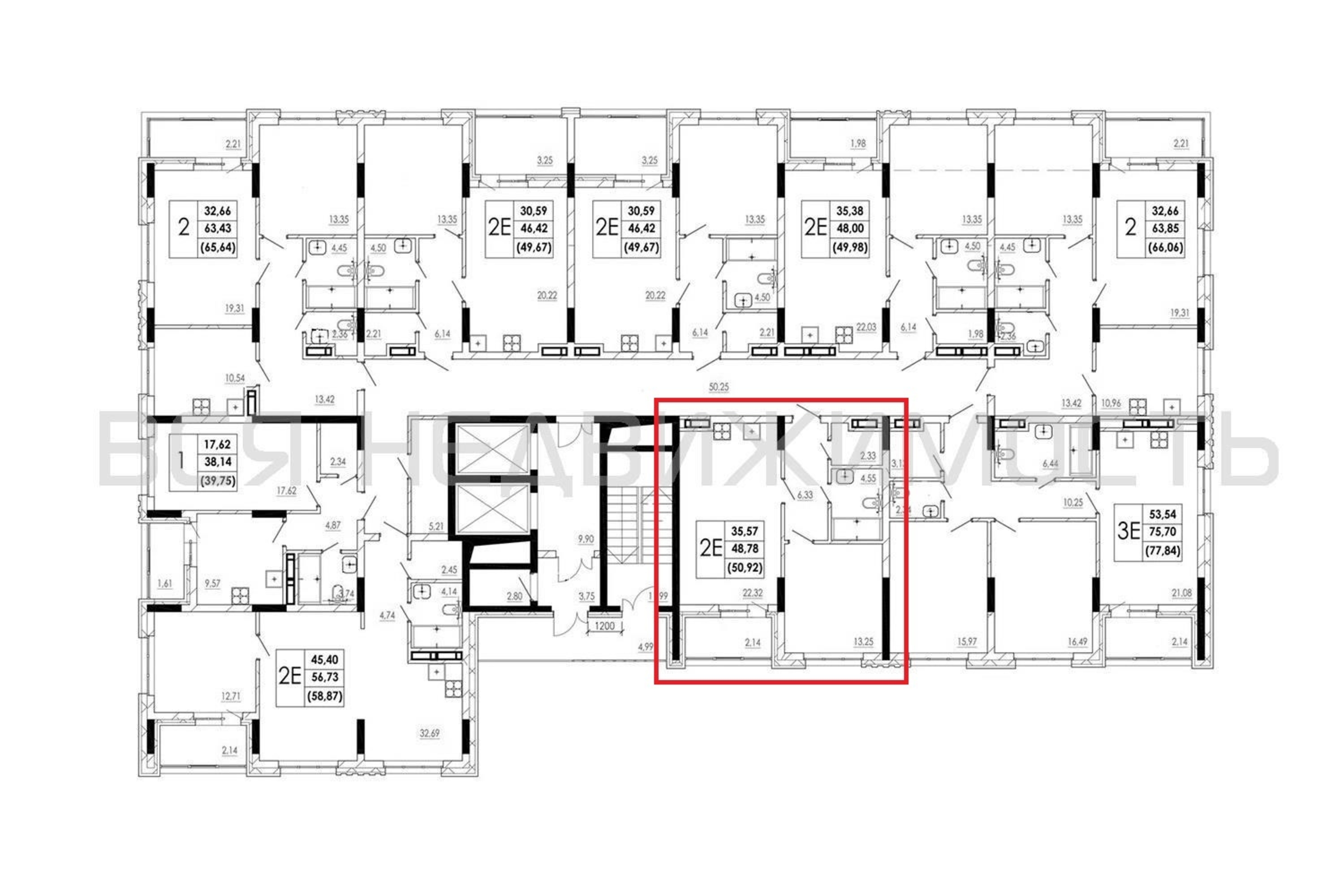
1-комнатная квартира, 50.92 м² 9/15 этаж ID объекта 100099099
Воронеж, Ленинградская ул., 120б
Инфраструктура поблизости
График стоимости
Цена за наличные:
6 287 400 ₽
126 000 ₽/м²
Базовая цена:
6 874 200 ₽
Семейная ипотека
от 30 157 ₽/мес
Ипотека
от 73 545 ₽/мес
? Расчет цены приблизительный, за более точной информацией обращайтесь к менеджеру
Тип сделкиПервичная продажа
Общая площадь49.90 м²
Строительная площадь50.92 м²
Жилая площадь13.25 м²
Площадь кухни22.32 м²
Высота потолков2.94 м
ОтделкаПредчистовая отделка
СанузелСовмещенный
КладовкаДа
ЛифтДа
Изолированные комнатыДа
Онлайн показДа



