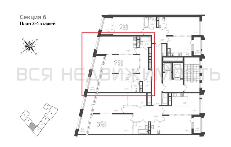
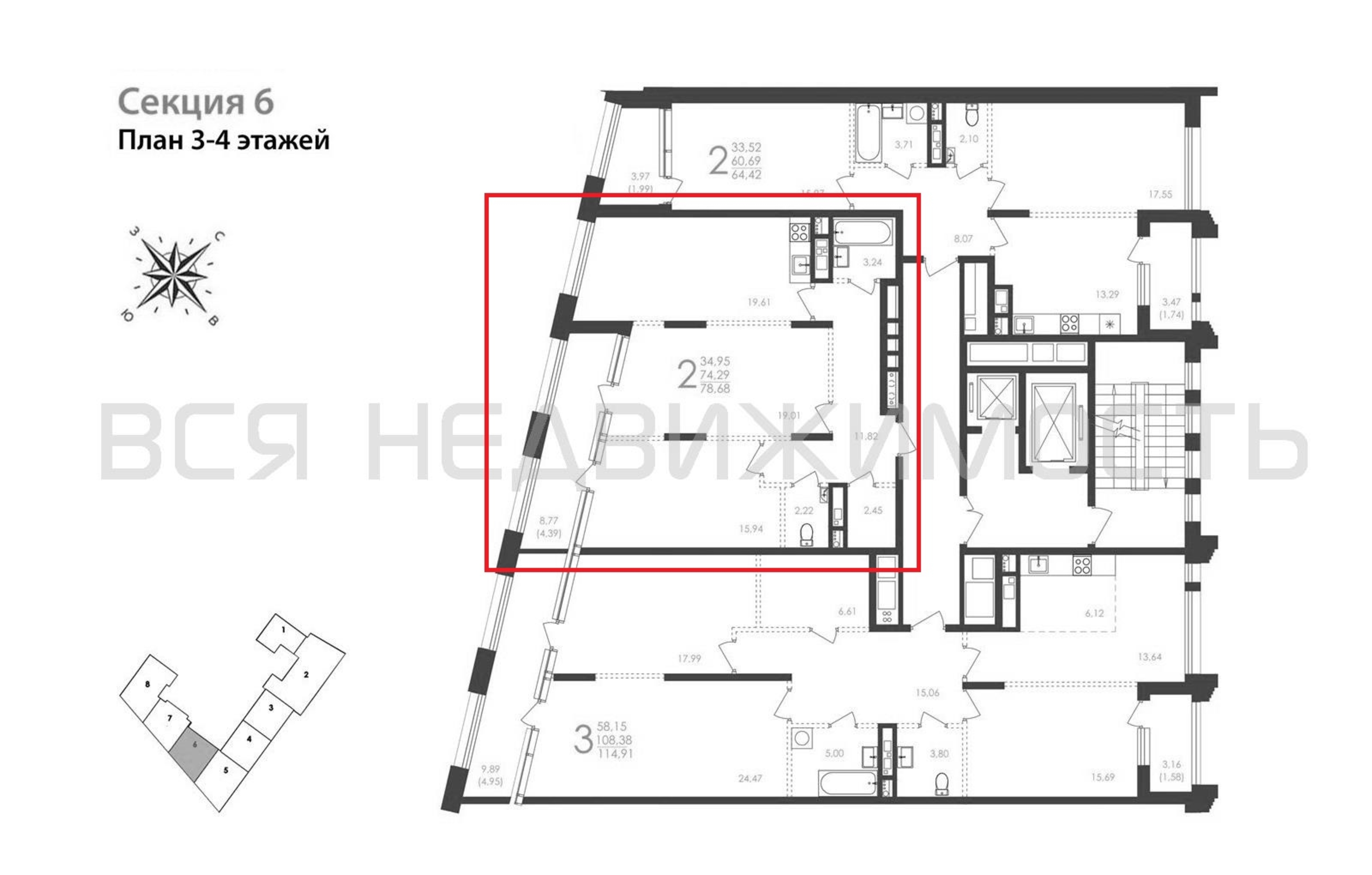
2-комнатная квартира, 78.68 м² 3/8 этаж ID объекта 100102147
Воронеж, Фридриха Энгельса ул., д. 88
Инфраструктура поблизости
График стоимости
Цена за наличные:
17 305 808 ₽
232 949 ₽/м²
Базовая цена:
21 632 260 ₽
Семейная ипотека
от 83 006 ₽/мес
Ипотека
от 202 428 ₽/мес
? Расчет цены приблизительный, за более точной информацией обращайтесь к менеджеру
КорпусЖД на Фридриха Энгельса
Срок сдачи4 кв 2027
Тип домаМонолитно-блочный
Этаж3/8
№ Квартиры161
Тип сделкиПервичная продажа
Общая площадь74.29 м²
Строительная площадь78.68 м²
Жилая площадь34.95 м²
Площадь кухни19.61 м²
Высота потолков3.10 м
ОтделкаЧерновая отделка
СанузелРаздельный
КладовкаНет
ЛифтДа
Изолированные комнатыДа
Свободная планировкаДа
Онлайн показДа



