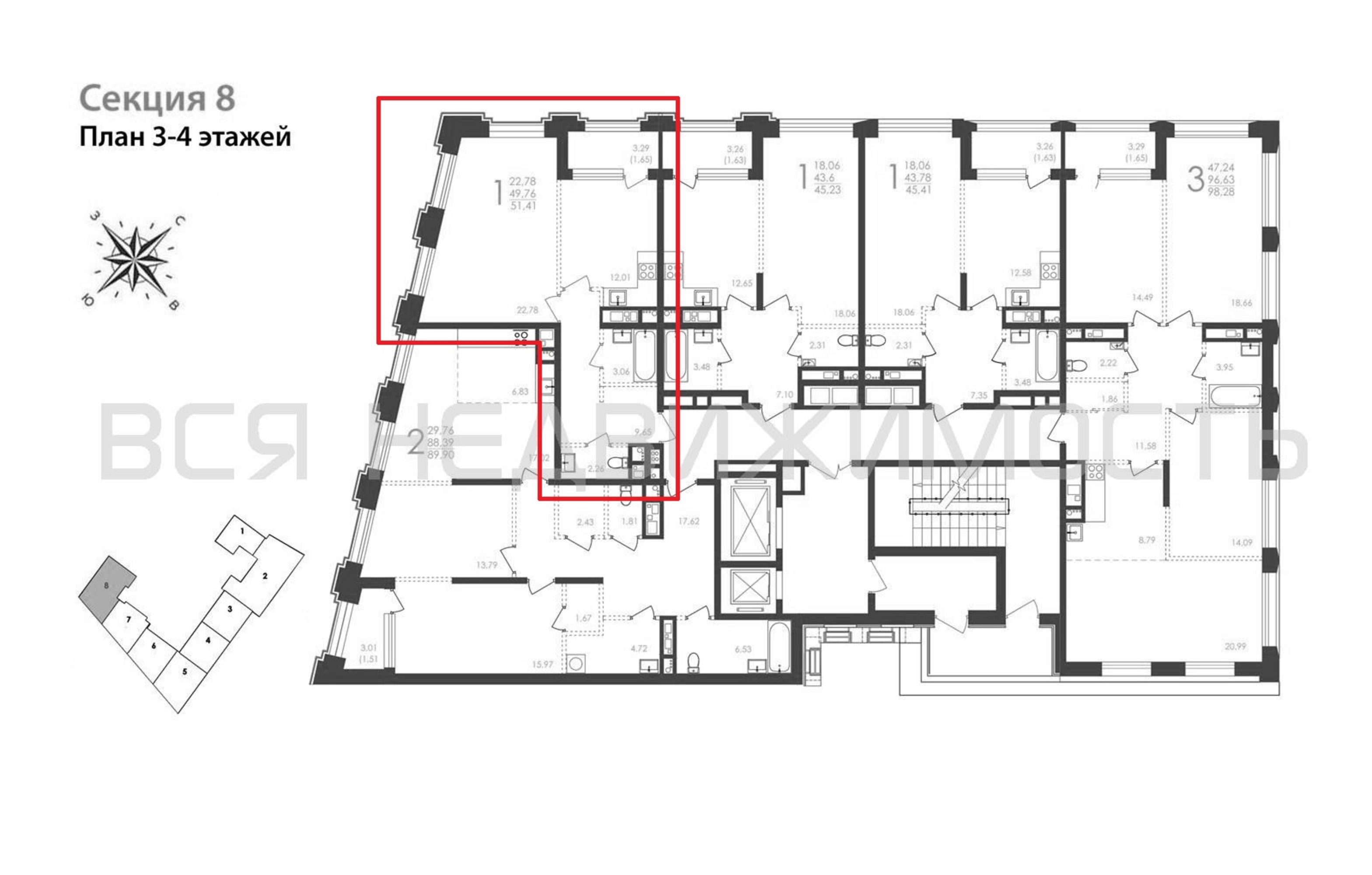
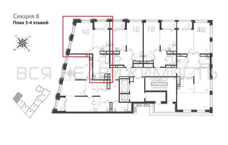
1-комнатная квартира, 51.41 м² 3/17 этаж ID объекта 100102195
Воронеж, Фридриха Энгельса ул., д. 88
Инфраструктура поблизости
График стоимости
Цена за наличные:
13 703 230 ₽
275 386 ₽/м²
Базовая цена:
14 420 505 ₽
Семейная ипотека
от 65 726 ₽/мес
Ипотека
от 160 288 ₽/мес
? Расчет цены приблизительный, за более точной информацией обращайтесь к менеджеру
КорпусЖД на Фридриха Энгельса
Срок сдачи4 кв 2027
Тип домаМонолитно-блочный
Этаж3/17
№ Квартиры236
Тип сделкиПервичная продажа
Общая площадь49.76 м²
Строительная площадь51.41 м²
Жилая площадь22.78 м²
Площадь кухни12.01 м²
Высота потолков3.10 м
ОтделкаЧерновая отделка
СанузелРаздельный
КладовкаНет
ЛифтДа
Изолированные комнатыДа
Свободная планировкаДа
Онлайн показДа



