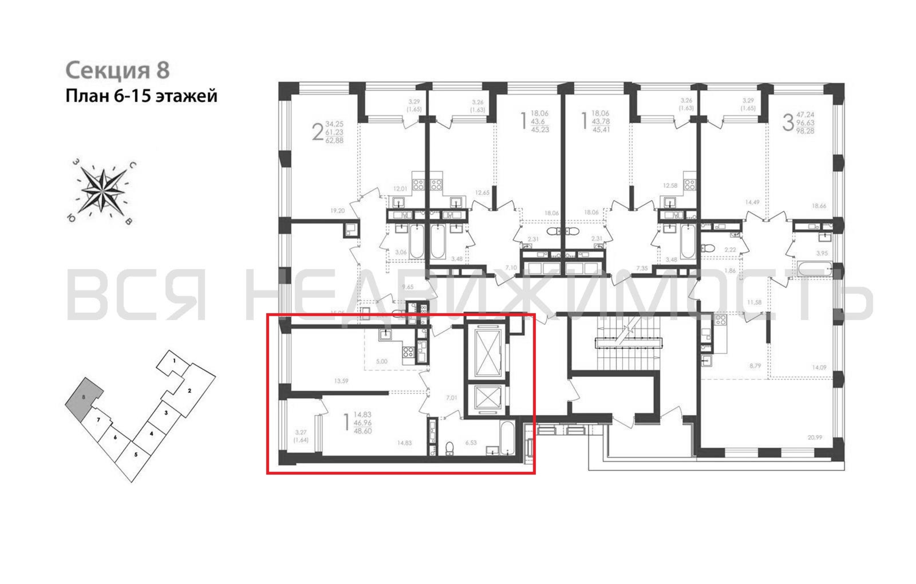
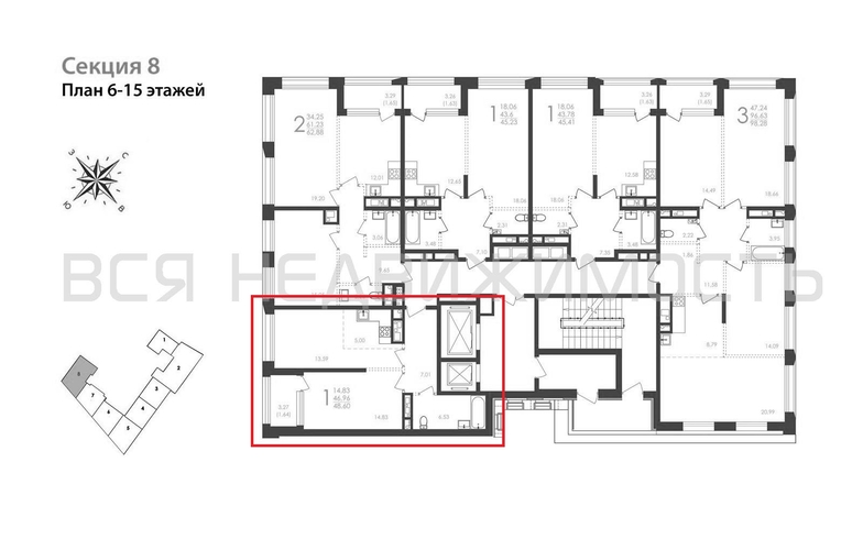
1-комнатная квартира, 48.60 м² 14/17 этаж ID объекта 100102251
Воронеж, Фридриха Энгельса ул., д. 88
Инфраструктура поблизости
График стоимости
Цена за наличные:
13 226 838 ₽
281 662 ₽/м²
Базовая цена:
13 919 040 ₽
Семейная ипотека
от 63 441 ₽/мес
Ипотека
от 154 716 ₽/мес
? Расчет цены приблизительный, за более точной информацией обращайтесь к менеджеру
КорпусЖД на Фридриха Энгельса
Срок сдачи4 кв 2027
Тип домаМонолитно-блочный
Этаж14/17
№ Квартиры290
Тип сделкиПервичная продажа
Общая площадь46.96 м²
Строительная площадь48.60 м²
Жилая площадь14.83 м²
Площадь кухни18.59 м²
Высота потолков3.10 м
ОтделкаЧерновая отделка
СанузелСовмещенный
КладовкаНет
ЛифтДа
Изолированные комнатыДа
Свободная планировкаДа
Онлайн показДа



