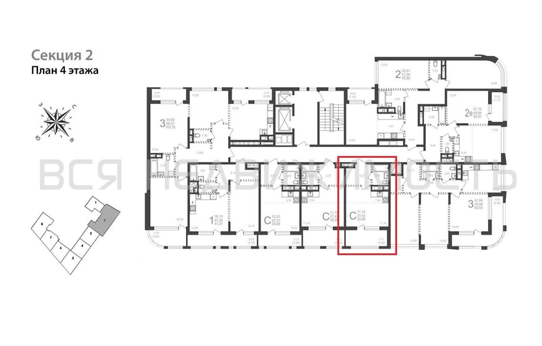
Квартиры-студии, 30.98 м² 4/7 этаж ID объекта 100102289
Воронеж, Фридриха Энгельса ул., д. 88
Инфраструктура поблизости
График стоимости
Цена за наличные:
8 983 148 ₽
327 613 ₽/м²
Базовая цена:
9 451 998 ₽
Семейная ипотека
от 43 087 ₽/мес
Ипотека
от 105 077 ₽/мес
? Расчет цены приблизительный, за более точной информацией обращайтесь к менеджеру
КорпусЖД на Фридриха Энгельса
Срок сдачи4 кв 2027
Тип домаМонолитно-блочный
Этаж4/7
№ Квартиры53
Тип сделкиПервичная продажа
Общая площадь27.42 м²
Строительная площадь30.98 м²
Жилая площадь18.20 м²
Площадь кухни3.00 м²
Высота потолков3.10 м
ОтделкаЧерновая отделка
СанузелСовмещенный
КладовкаНет
ЛифтДа
Изолированные комнатыДа
Свободная планировкаДа
Онлайн показДа



