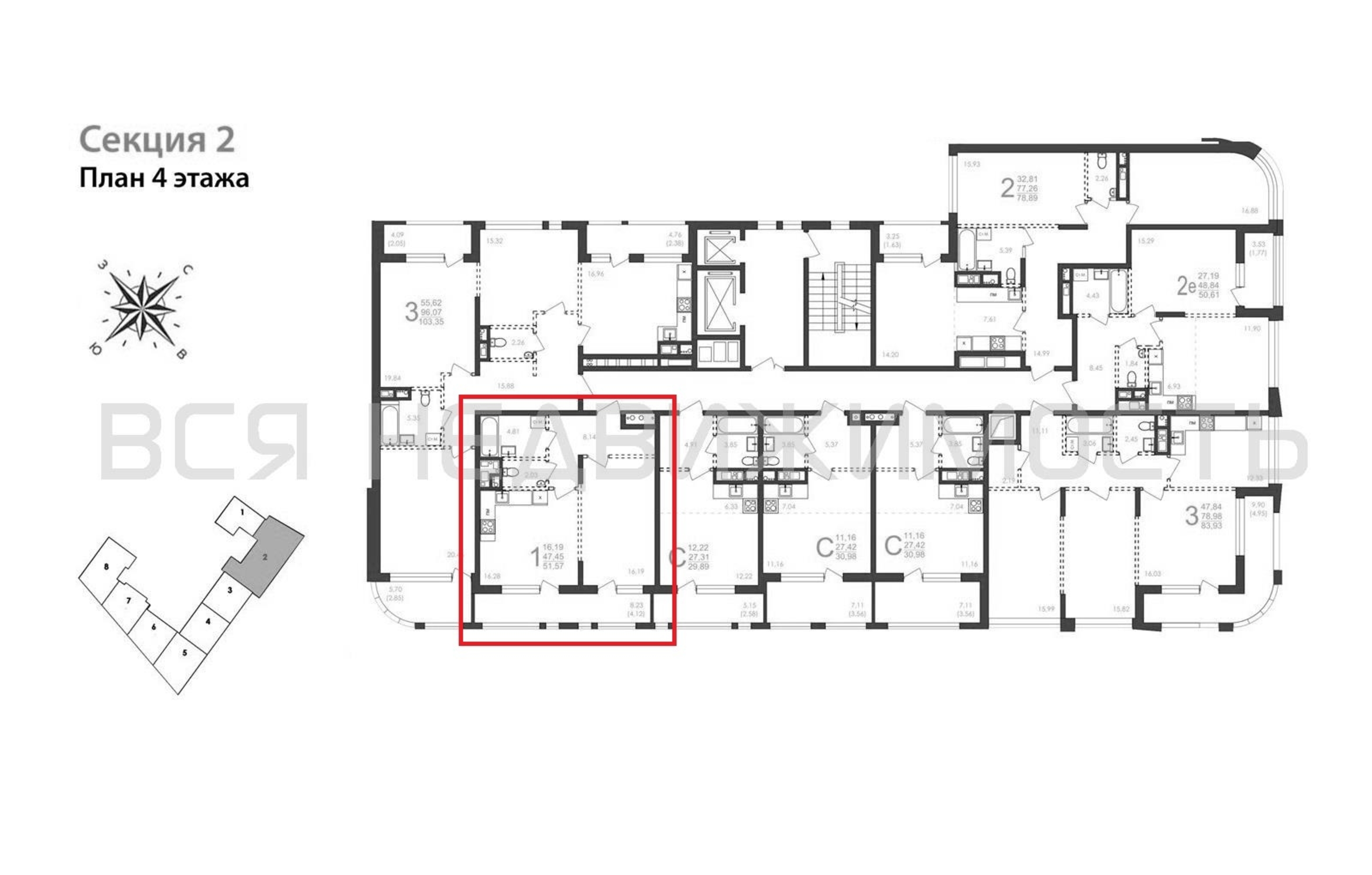
1-комнатная квартира, 51.57 м² 4/7 этаж ID объекта 100102293
Воронеж, Фридриха Энгельса ул., д. 88
Инфраструктура поблизости
График стоимости
Цена за наличные:
13 589 093 ₽
286 388 ₽/м²
Базовая цена:
14 300 361 ₽
Семейная ипотека
от 65 179 ₽/мес
Ипотека
от 158 953 ₽/мес
? Расчет цены приблизительный, за более точной информацией обращайтесь к менеджеру
КорпусЖД на Фридриха Энгельса
Срок сдачи4 кв 2027
Тип домаМонолитно-блочный
Этаж4/7
№ Квартиры56
Тип сделкиПервичная продажа
Общая площадь47.45 м²
Строительная площадь51.57 м²
Жилая площадь16.19 м²
Площадь кухни16.28 м²
Высота потолков3.10 м
ОтделкаЧерновая отделка
СанузелРаздельный
КладовкаНет
ЛифтДа
Изолированные комнатыДа
Свободная планировкаДа
Онлайн показДа



