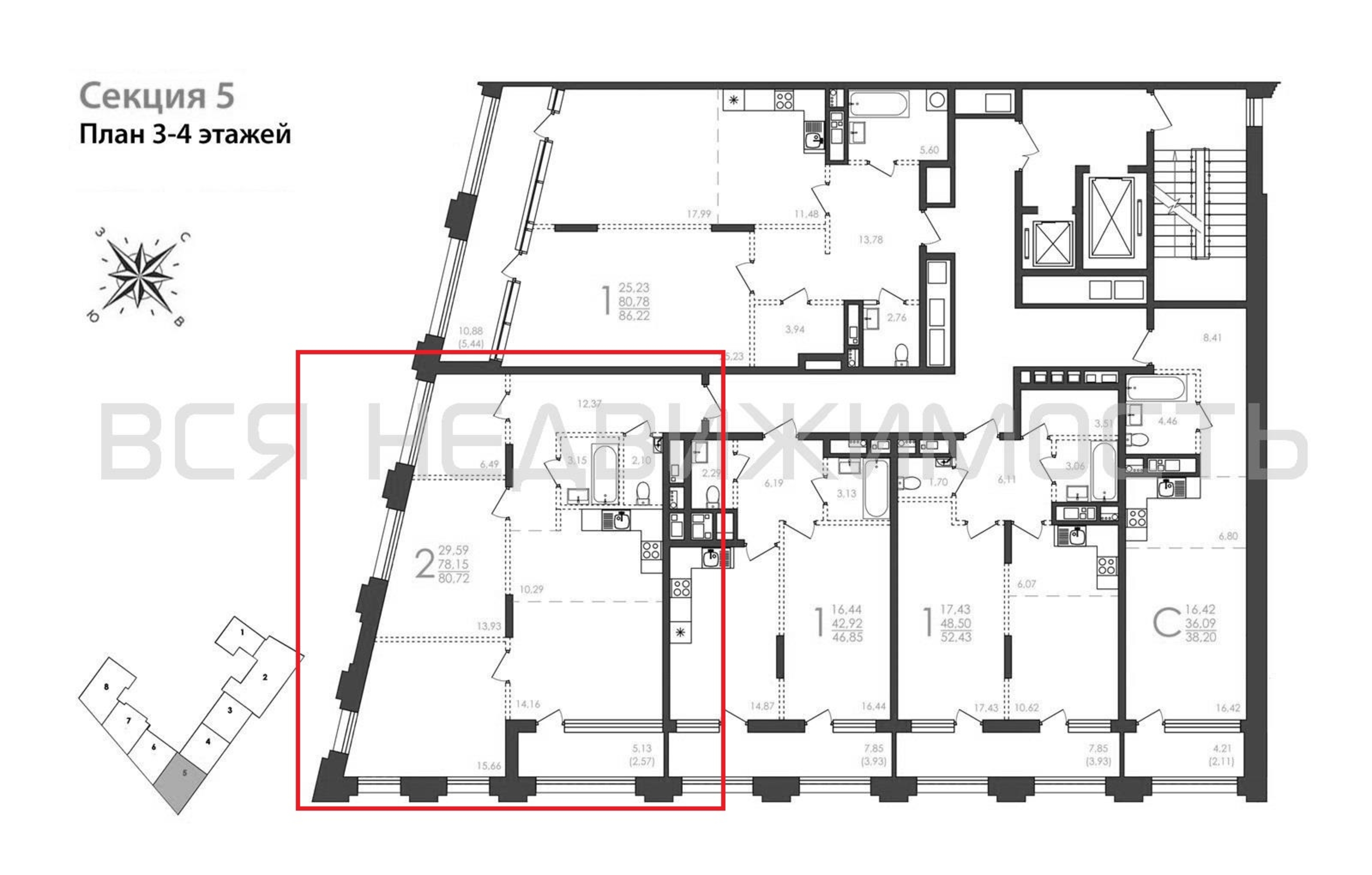
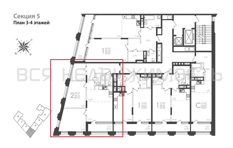
2-комнатная квартира, 80.72 м² 3/8 этаж ID объекта 100102308
Воронеж, Фридриха Энгельса ул., д. 88
Инфраструктура поблизости
График стоимости
Цена за наличные:
21 045 840 ₽
269 301 ₽/м²
Базовая цена:
22 149 568 ₽
Семейная ипотека
от 100 944 ₽/мес
Ипотека
от 246 176 ₽/мес
? Расчет цены приблизительный, за более точной информацией обращайтесь к менеджеру
КорпусЖД на Фридриха Энгельса
Срок сдачи4 кв 2027
Тип домаМонолитно-блочный
Этаж3/8
№ Квартиры138
Тип сделкиПервичная продажа
Общая площадь78.15 м²
Строительная площадь80.72 м²
Жилая площадь29.59 м²
Площадь кухни24.45 м²
Высота потолков3.10 м
ОтделкаЧерновая отделка
СанузелРаздельный
КладовкаНет
ЛифтДа
Изолированные комнатыНет
Свободная планировкаДа
Онлайн показДа



