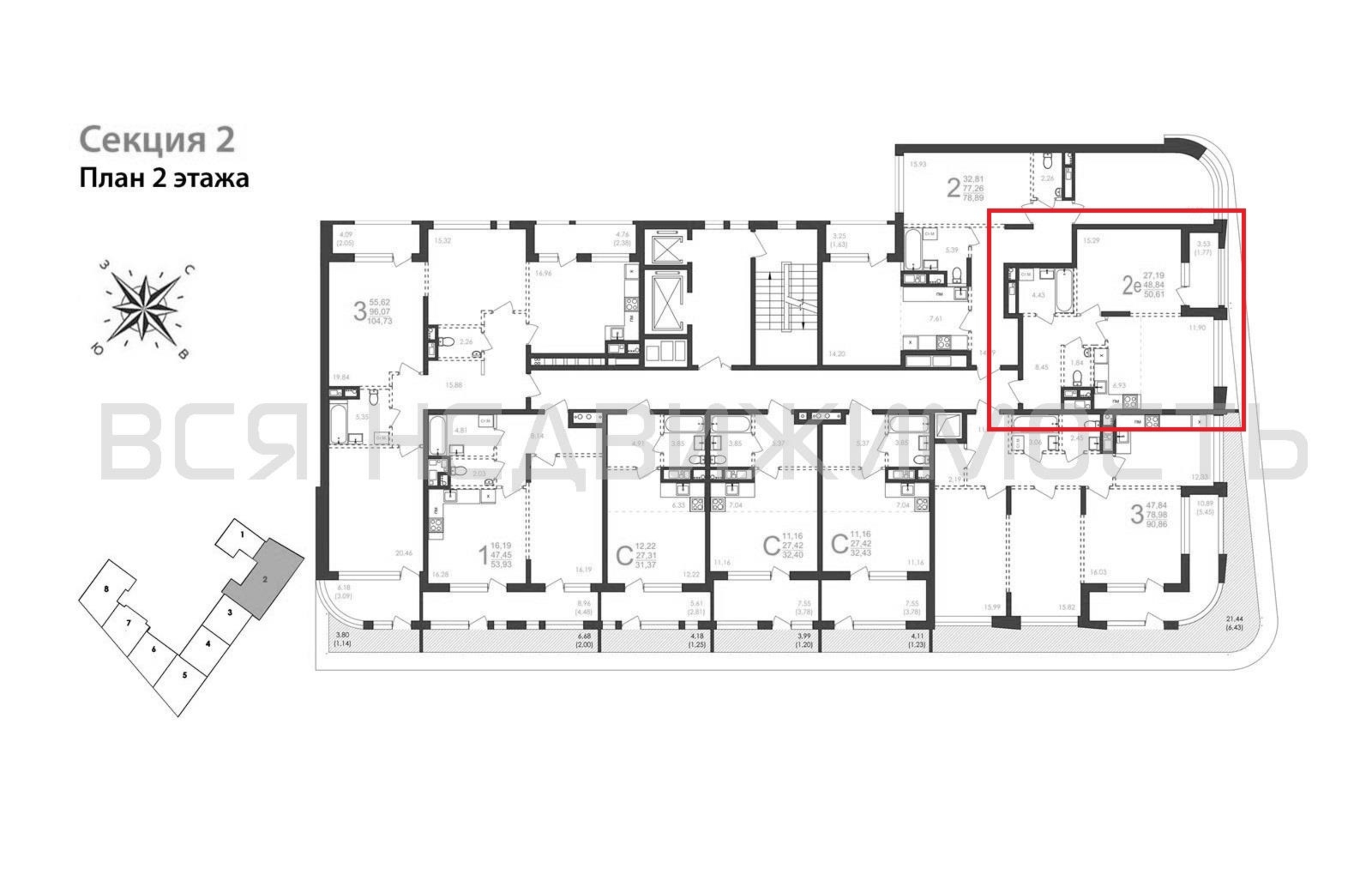
1-комнатная квартира, 50.61 м² 2/7 этаж ID объекта 100102446
Воронеж, Фридриха Энгельса ул., д. 88
Инфраструктура поблизости
Цена за наличные:
13 288 116 ₽
272 074 ₽/м²
Базовая цена:
13 983 543 ₽
Семейная ипотека
от 63 735 ₽/мес
Ипотека
от 155 433 ₽/мес
? Расчет цены приблизительный, за более точной информацией обращайтесь к менеджеру
КорпусЖД на Фридриха Энгельса
Срок сдачи4 кв 2027
Тип домаМонолитно-блочный
Этаж2/7
№ Квартиры35
Тип сделкиПервичная продажа
Общая площадь48.84 м²
Строительная площадь50.61 м²
Жилая площадь15.29 м²
Площадь кухни18.83 м²
Высота потолков3.10 м
ОтделкаЧерновая отделка
СанузелРаздельный
КладовкаНет
ЛифтДа
Изолированные комнатыДа
Свободная планировкаДа
Онлайн показДа



