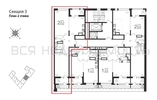
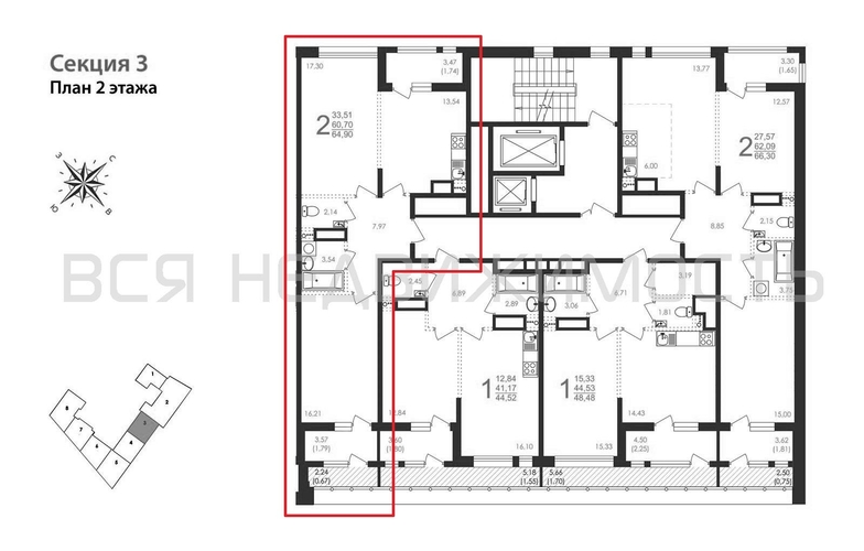
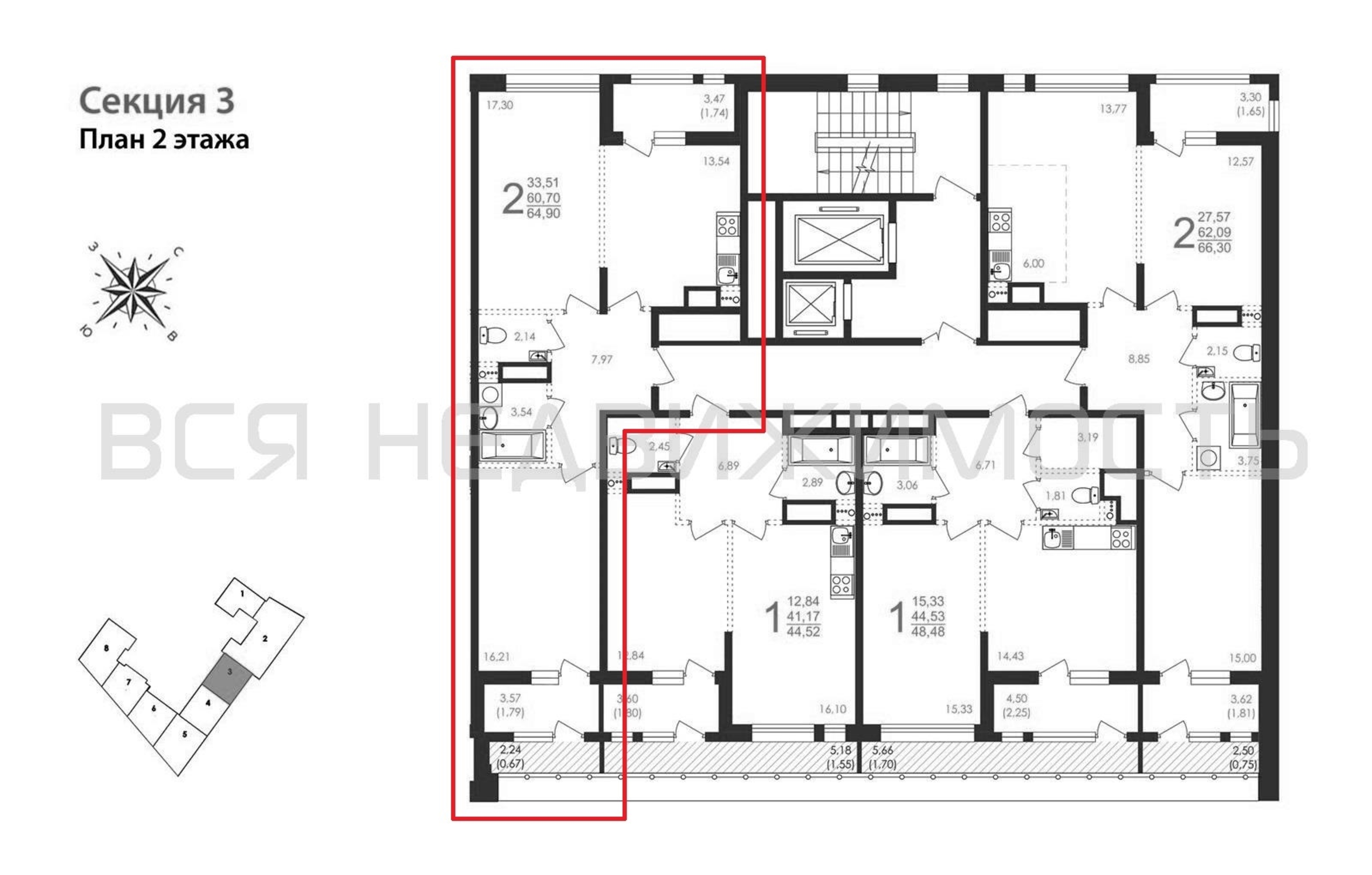
2-комнатная квартира, 64.90 м² 2/8 этаж ID объекта 100102452
Воронеж, Фридриха Энгельса ул., д. 88
Инфраструктура поблизости
График стоимости
Цена за наличные:
17 156 171 ₽
282 639 ₽/м²
Базовая цена:
18 055 180 ₽
Семейная ипотека
от 82 288 ₽/мес
Ипотека
от 200 678 ₽/мес
? Расчет цены приблизительный, за более точной информацией обращайтесь к менеджеру
КорпусЖД на Фридриха Энгельса
Срок сдачи4 кв 2027
Тип домаМонолитно-блочный
Этаж2/8
№ Квартиры79
Тип сделкиПервичная продажа
Общая площадь60.70 м²
Строительная площадь64.90 м²
Жилая площадь33.51 м²
Площадь кухни13.54 м²
Высота потолков3.10 м
ОтделкаЧерновая отделка
СанузелРаздельный
Балкон2 лоджии + терасса
КладовкаНет
ЛифтДа
Изолированные комнатыДа
Свободная планировкаДа
Онлайн показДа



