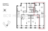
2-комнатная квартира, 68.40 м² 2/8 этаж ID объекта 100102477
Воронеж, Фридриха Энгельса ул., д. 88
Инфраструктура поблизости
График стоимости
Цена за наличные:
17 821 266 ₽
274 765 ₽/м²
Базовая цена:
18 755 280 ₽
Семейная ипотека
от 85 478 ₽/мес
Ипотека
от 208 458 ₽/мес
? Расчет цены приблизительный, за более точной информацией обращайтесь к менеджеру
КорпусЖД на Фридриха Энгельса
Срок сдачи4 кв 2027
Тип домаМонолитно-блочный
Этаж2/8
№ Квартиры104
Тип сделкиПервичная продажа
Общая площадь64.86 м²
Строительная площадь68.40 м²
Жилая площадь35.59 м²
Площадь кухни13.54 м²
Высота потолков3.10 м
ОтделкаЧерновая отделка
СанузелРаздельный
Балкон2 лоджии
КладовкаНет
ЛифтДа
Изолированные комнатыДа
Свободная планировкаДа
Онлайн показДа



