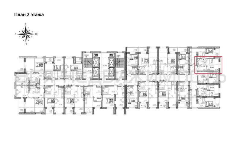
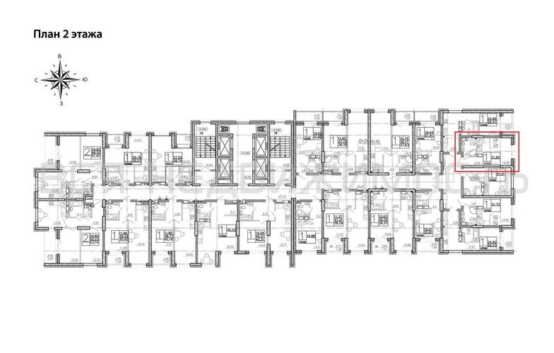
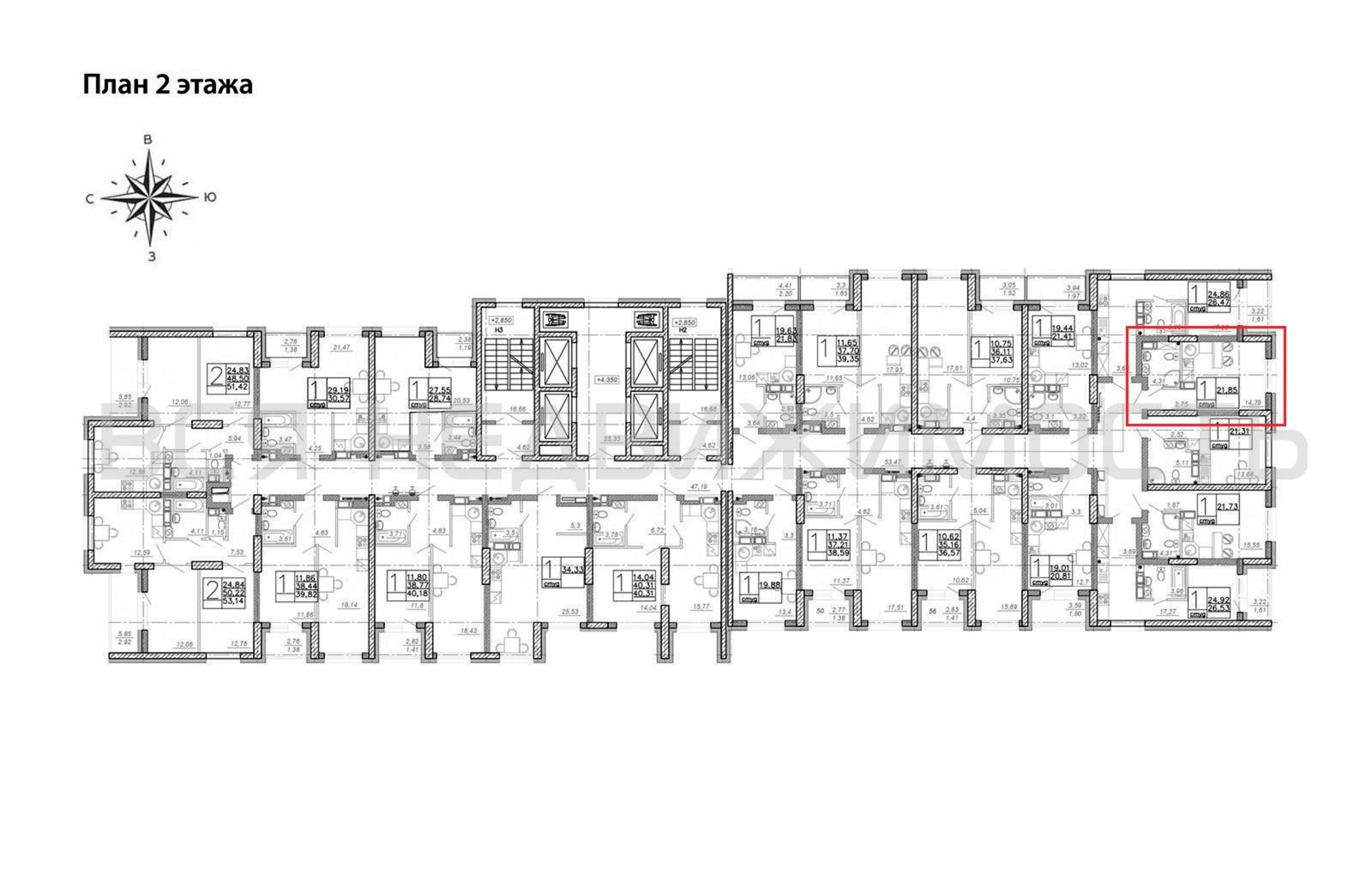
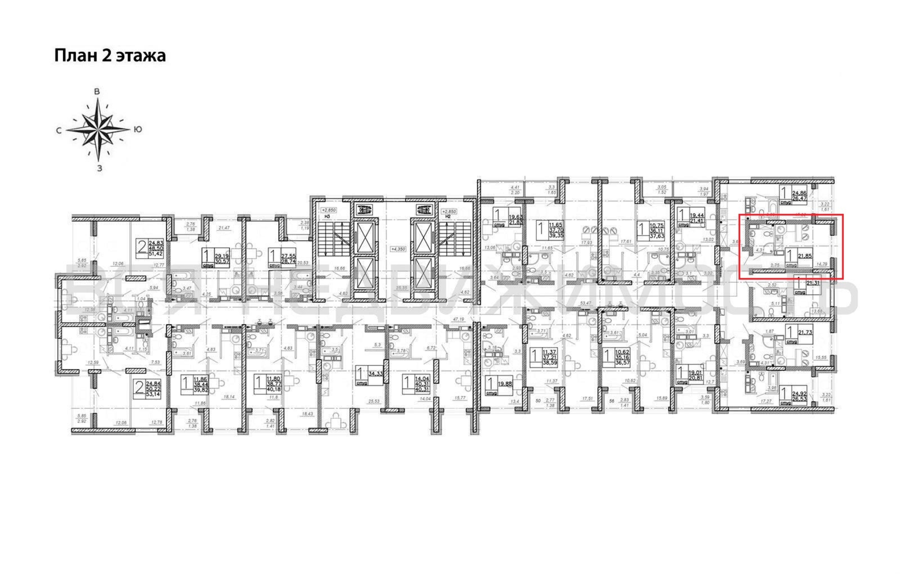
Квартиры-студии, 21.85 м² 2/28 этаж ID объекта 100108314
Воронеж, Транспортная ул., д. 58
Инфраструктура поблизости
График стоимости
Цена за наличные:
2 949 750 ₽
135 000 ₽/м²
Базовая цена:
3 714 500 ₽
Семейная ипотека
от 14 148 ₽/мес
Ипотека
от 34 504 ₽/мес
? Расчет цены приблизительный, за более точной информацией обращайтесь к менеджеру
КорпусЖД Дом у Ротонды
Срок сдачи4 кв 2027
Тип домаМонолитный
Этаж2/28
№ Квартиры6
Тип сделкиПервичная продажа
Общая площадь21.85 м²
Строительная площадь21.85 м²
Жилая площадь14.79 м²
Площадь кухни3.00 м²
Высота потолков2.72 м
ОтделкаЧерновая отделка
СанузелСовмещенный
БалконНет
КладовкаНет
ЛифтДа
Изолированные комнатыДа
Онлайн показДа



