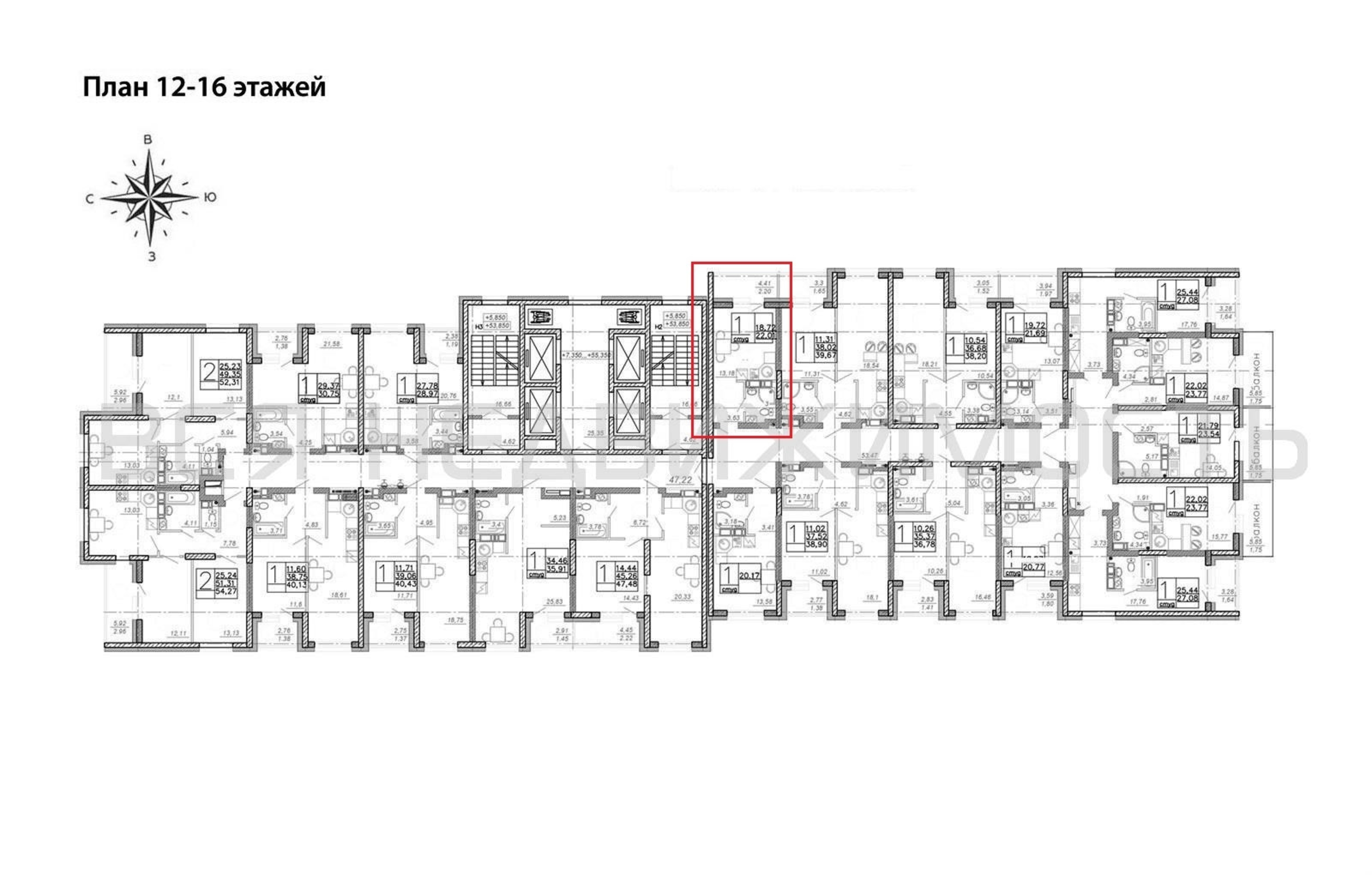
Квартиры-студии, 22.01 м² 13/28 этаж ID объекта 100108511
Воронеж, Транспортная ул., д. 58
Инфраструктура поблизости
График стоимости
Цена за наличные:
3 191 450 ₽
161 103 ₽/м²
Базовая цена:
3 741 700 ₽
Семейная ипотека
от 15 307 ₽/мес
Ипотека
от 37 331 ₽/мес
? Расчет цены приблизительный, за более точной информацией обращайтесь к менеджеру
КорпусЖД Дом у Ротонды
Срок сдачи4 кв 2027
Тип домаМонолитный
Этаж13/28
№ Квартиры232
Тип сделкиПервичная продажа
Общая площадь19.81 м²
Строительная площадь22.01 м²
Жилая площадь13.18 м²
Площадь кухни3.00 м²
Высота потолков2.72 м
ОтделкаЧерновая отделка
СанузелСовмещенный
КладовкаНет
ЛифтДа
Изолированные комнатыДа
Онлайн показДа



