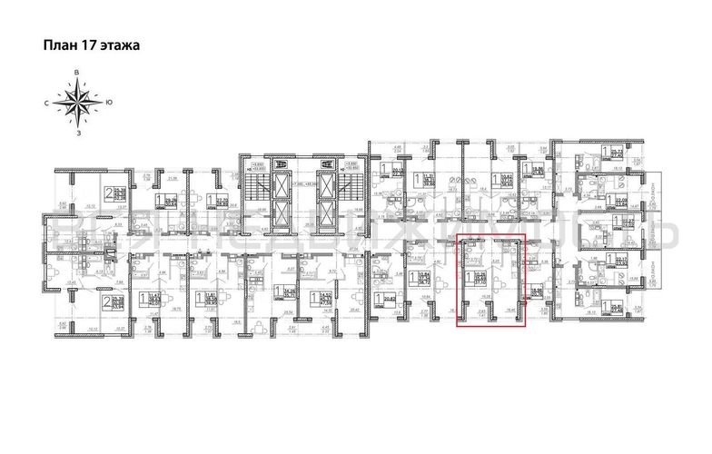
1-комнатная квартира, 37.10 м² 17/28 этаж ID объекта 100108564
Воронеж, Транспортная ул., д. 58
Инфраструктура поблизости
График стоимости
Цена за наличные:
5 379 500 ₽
150 728 ₽/м²
Базовая цена:
5 936 000 ₽
Семейная ипотека
от 25 802 ₽/мес
Ипотека
от 62 925 ₽/мес
? Расчет цены приблизительный, за более точной информацией обращайтесь к менеджеру
КорпусЖД Дом у Ротонды
Срок сдачи4 кв 2027
Тип домаМонолитный
Этаж17/28
№ Квартиры326
Тип сделкиПервичная продажа
Общая площадь35.69 м²
Строительная площадь37.10 м²
Жилая площадь10.26 м²
Площадь кухни16.46 м²
Высота потолков2.72 м
ОтделкаЧерновая отделка
СанузелСовмещенный
КладовкаНет
ЛифтДа
Изолированные комнатыДа
Онлайн показДа



