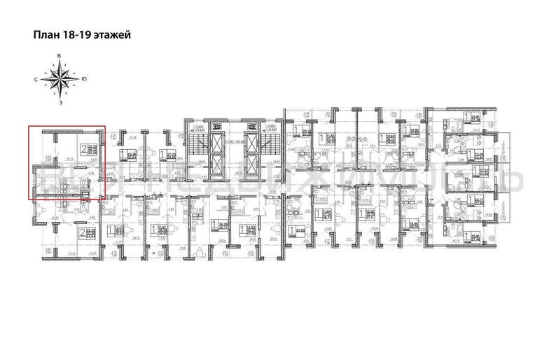
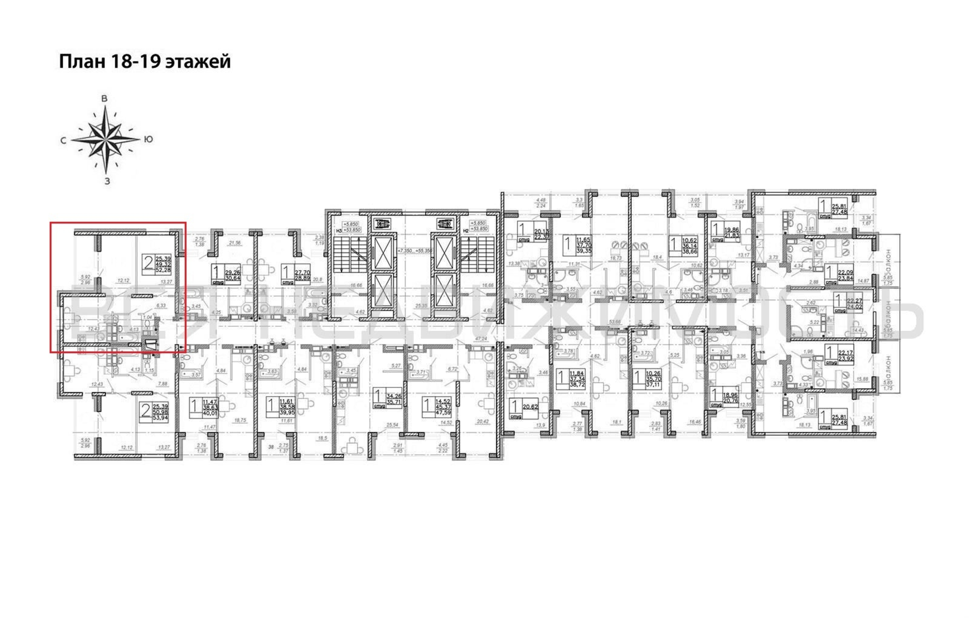
2-комнатная квартира, 52.28 м² 19/28 этаж ID объекта 100108581
Воронеж, Транспортная ул., д. 58
Инфраструктура поблизости
График стоимости
Цена за наличные:
7 580 600 ₽
153 702 ₽/м²
Базовая цена:
8 103 400 ₽
Семейная ипотека
от 36 360 ₽/мес
Ипотека
от 88 671 ₽/мес
? Расчет цены приблизительный, за более точной информацией обращайтесь к менеджеру
КорпусЖД Дом у Ротонды
Срок сдачи4 кв 2027
Тип домаМонолитный
Этаж19/28
№ Квартиры376
Тип сделкиПервичная продажа
Общая площадь49.32 м²
Строительная площадь52.28 м²
Жилая площадь25.39 м²
Площадь кухни12.43 м²
Высота потолков2.72 м
ОтделкаЧерновая отделка
СанузелРаздельный
КладовкаНет
ЛифтДа
Изолированные комнатыДа
Онлайн показДа



