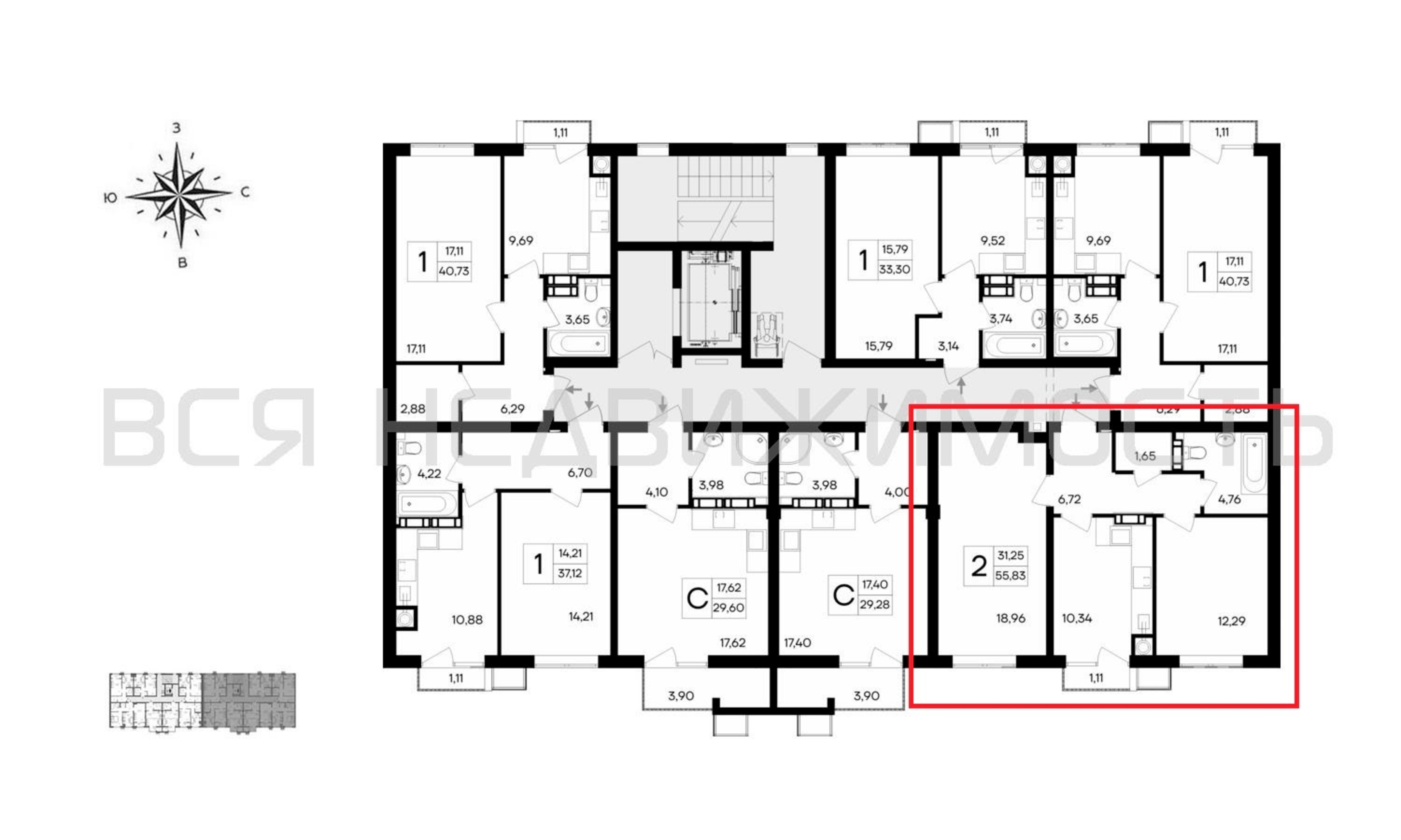
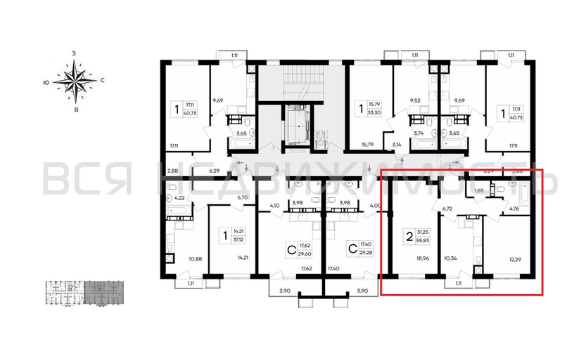
2-комнатная квартира, 55.83 м² 4/8 этаж ID объекта 100113377
пгт. Гвардейское, Курганная ул., д. 31
Инфраструктура поблизости
График стоимости
Базовая цена:
6 205 504 ₽
113 405 ₽/м²
Семейная ипотека
от 29 764 ₽/мес
Ипотека
от 72 587 ₽/мес
? Расчет цены приблизительный, за более точной информацией обращайтесь к менеджеру
КорпусЭтап 2 позиция 2
Срок сдачи3 кв 2026
Тип домаМонолитно-блочный
Этаж4/8
№ Квартиры78
Тип сделкиПервичная продажа
Общая площадь54.72 м²
Строительная площадь55.83 м²
Жилая площадь31.25 м²
Площадь кухни10.34 м²
Высота потолков2.70 м
ОтделкаЧерновая отделка
СанузелСовмещенный
БалконФранцузский балкон
КладовкаДа
ЛифтДа
Изолированные комнатыДа
Онлайн показДа



