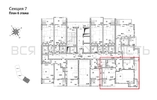
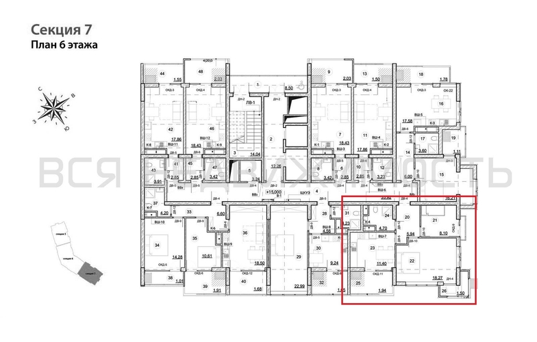
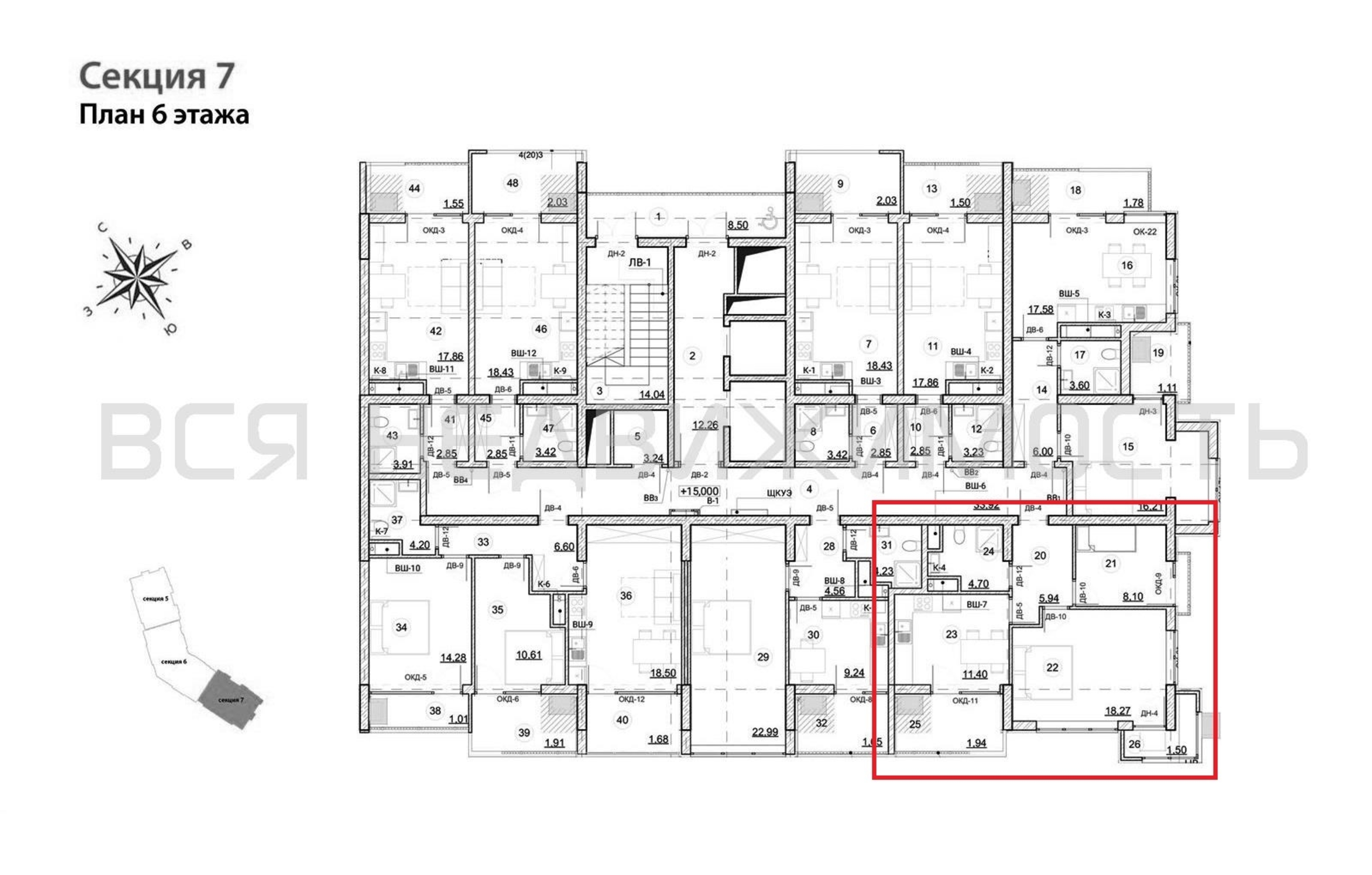
2-комнатная квартира, 52.03 м² 6/14 этаж ID объекта 100115362
Алушта, п. Семидворье, Пограничный пер., д. 7
Инфраструктура поблизости
График стоимости
Цена за наличные:
20 339 047 ₽
420 141 ₽/м²
Базовая цена:
20 968 090 ₽
Семейная ипотека
от 97 554 ₽/мес
Ипотека
от 237 908 ₽/мес
? Расчет цены приблизительный, за более точной информацией обращайтесь к менеджеру
Тип сделкиПервичная продажа
Общая площадь48.41 м²
Строительная площадь52.03 м²
Жилая площадь26.37 м²
Площадь кухни11.40 м²
Высота потолков2.70 м
ОтделкаЧерновая отделка
СанузелСовмещенный
БалконБалкон + лоджия
КладовкаНет
ЛифтДа
Изолированные комнатыДа
Онлайн показДа



