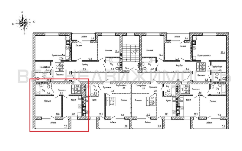
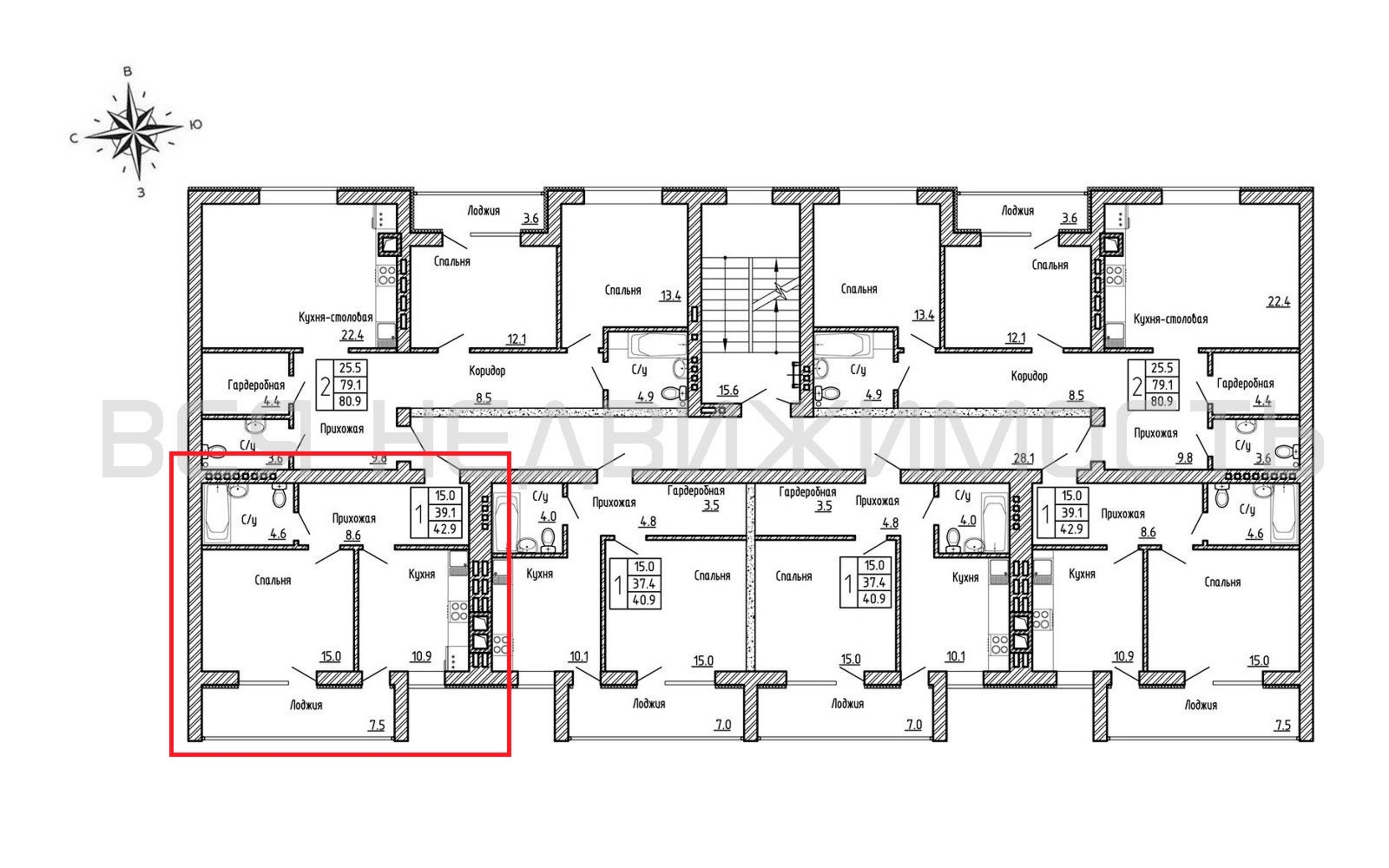
1-комнатная квартира, 42.90 м² 3/4 этаж ID объекта 100116242
Ямное, Генерала Бакланова ул., д. 1
Инфраструктура поблизости
График стоимости
Базовая цена:
4 381 000 ₽
112 046 ₽/м²
Семейная ипотека
от 21 013 ₽/мес
Ипотека
от 51 245 ₽/мес
? Расчет цены приблизительный, за более точной информацией обращайтесь к менеджеру
Тип сделкиПервичная продажа
Общая площадь39.10 м²
Строительная площадь42.90 м²
Жилая площадь15.00 м²
Площадь кухни10.90 м²
Высота потолков2.70 м
ОтделкаПредчистовая отделка
СанузелСовмещенный
КладовкаНет
ЛифтНет
Изолированные комнатыДа
Онлайн показДа



