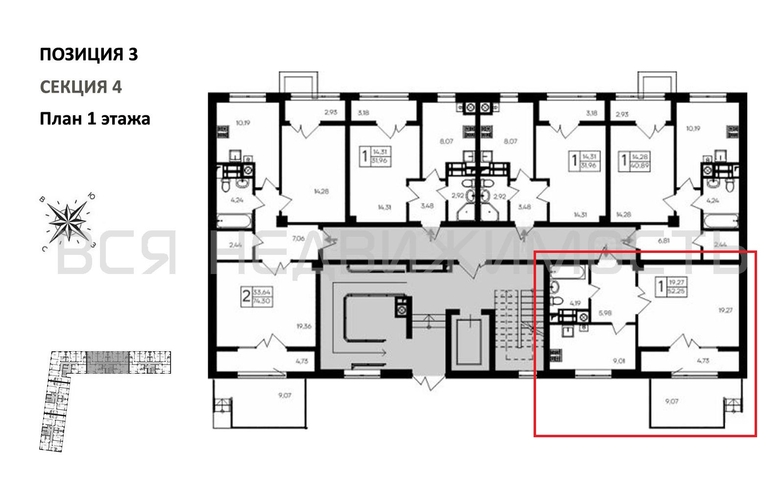
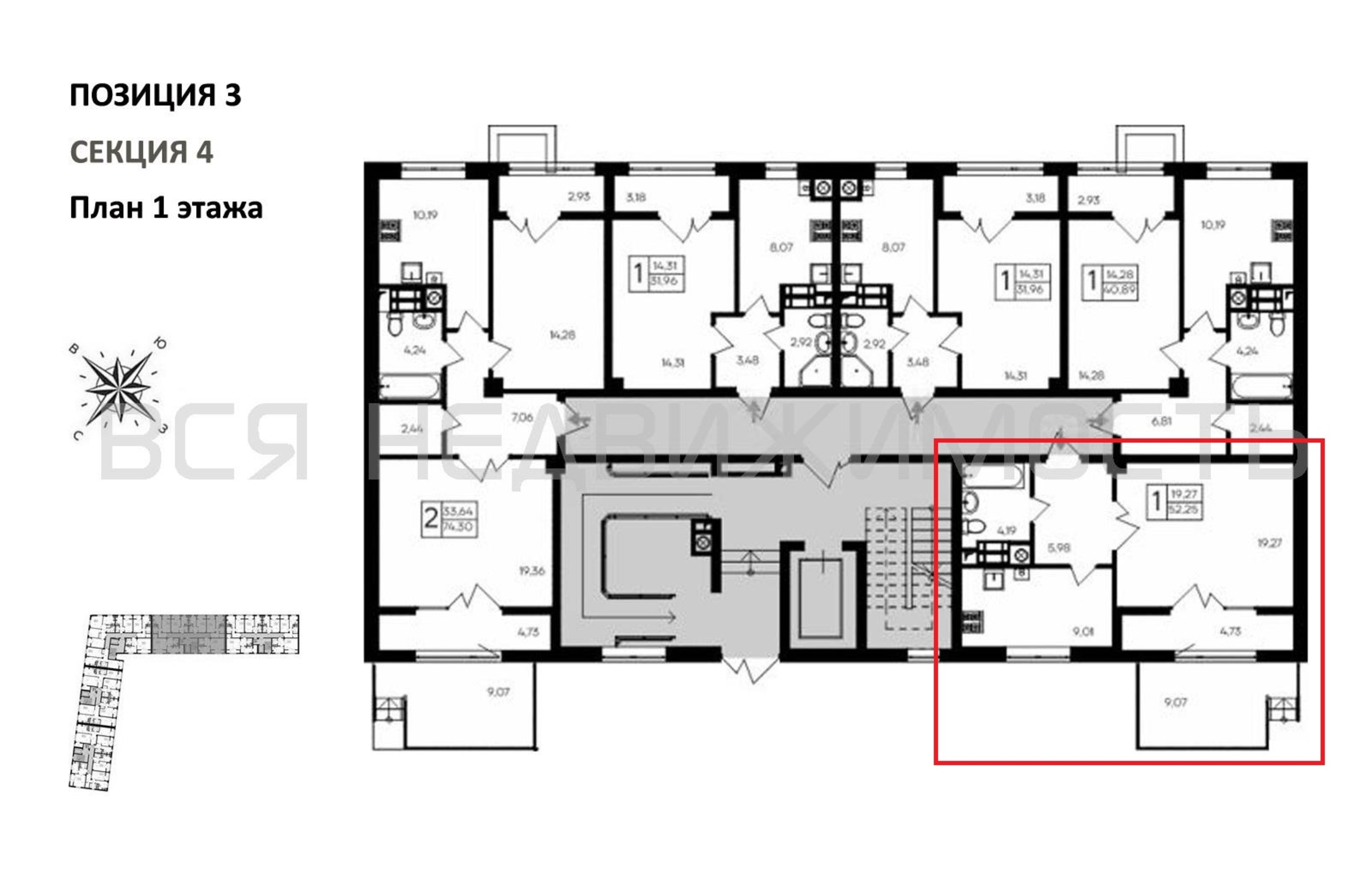
1-комнатная квартира, 52.25 м² 1/9 этаж ID объекта 100116759
с. Мирное, Парковая ул.,
Инфраструктура поблизости
График стоимости
Базовая цена:
6 552 150 ₽
170 407 ₽/м²
Семейная ипотека
от 31 427 ₽/мес
Ипотека
от 76 641 ₽/мес
? Расчет цены приблизительный, за более точной информацией обращайтесь к менеджеру
КорпусПозиция 3
Срок сдачи2 кв 2027
Тип домаМонолитно-блочный
Этаж1/9
№ Квартиры119
Тип сделкиПервичная продажа
Общая площадь38.45 м²
Строительная площадь52.25 м²
Жилая площадь19.27 м²
Площадь кухни9.01 м²
Высота потолков2.80 м
ОтделкаЧерновая отделка
СанузелСовмещенный
БалконЛоджия + терраса
КладовкаНет
ЛифтДа
Изолированные комнатыДа
Онлайн показДа



