1-комнатная квартира, 43.18 м² 2/9 этаж ID объекта 100116765
с. Мирное, Парковая ул.,
Инфраструктура поблизости
График стоимости
Базовая цена:
6 071 108 ₽
157 896 ₽/м²
Семейная ипотека
от 29 119 ₽/мес
Ипотека
от 71 015 ₽/мес
? Расчет цены приблизительный, за более точной информацией обращайтесь к менеджеру
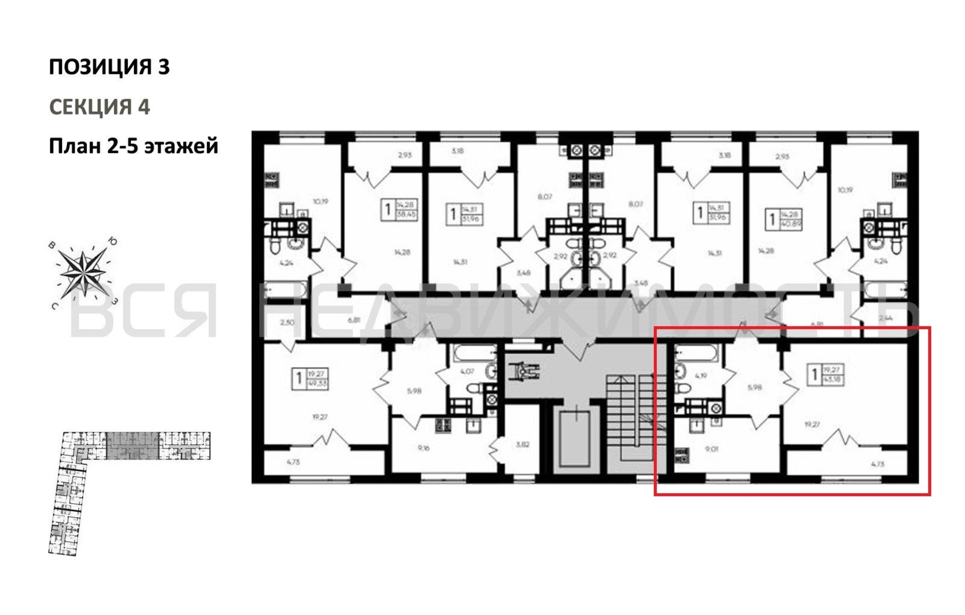
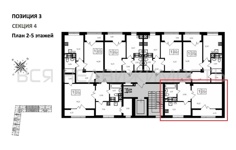
КорпусПозиция 3
Срок сдачи2 кв 2027
Тип домаМонолитно-блочный
Этаж2/9
№ Квартиры125
Тип сделкиПервичная продажа
Общая площадь38.45 м²
Строительная площадь43.18 м²
Жилая площадь19.27 м²
Площадь кухни9.01 м²
Высота потолков2.80 м
ОтделкаЧерновая отделка
СанузелСовмещенный
КладовкаНет
ЛифтДа
Изолированные комнатыДа
Онлайн показДа



