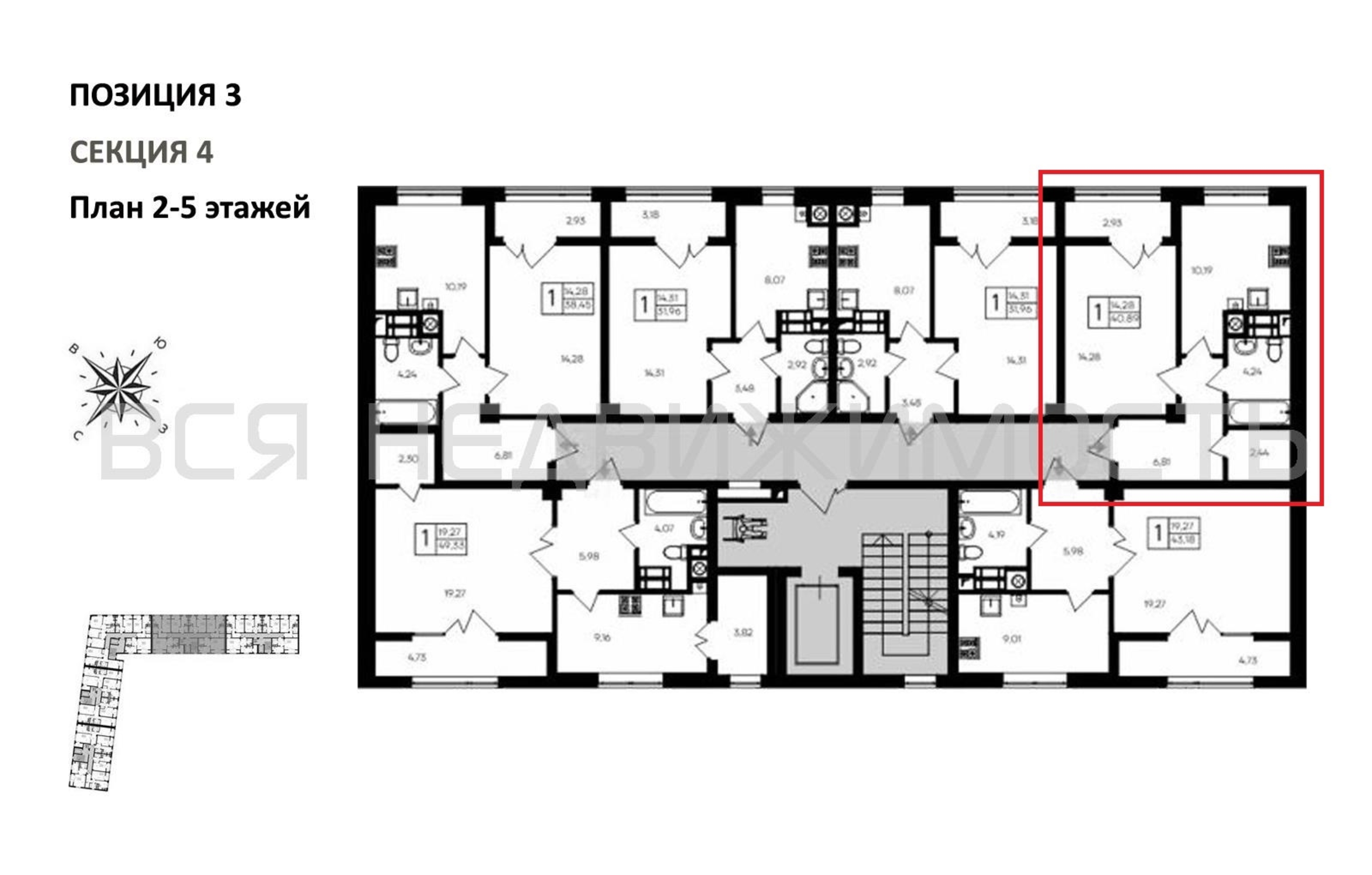
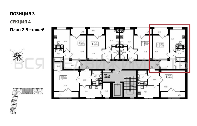
1-комнатная квартира, 40.89 м² 5/9 этаж ID объекта 100116782
с. Мирное, Парковая ул.,
Инфраструктура поблизости
График стоимости
Базовая цена:
5 826 825 ₽
153 499 ₽/м²
Семейная ипотека
от 27 948 ₽/мес
Ипотека
от 68 157 ₽/мес
? Расчет цены приблизительный, за более точной информацией обращайтесь к менеджеру
КорпусПозиция 3
Срок сдачи2 кв 2027
Тип домаМонолитно-блочный
Этаж5/9
№ Квартиры142
Тип сделкиПервичная продажа
Общая площадь37.96 м²
Строительная площадь40.89 м²
Жилая площадь14.28 м²
Площадь кухни10.19 м²
Высота потолков2.80 м
ОтделкаЧерновая отделка
СанузелСовмещенный
КладовкаДа
ЛифтДа
Изолированные комнатыДа
Онлайн показДа



