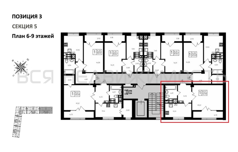
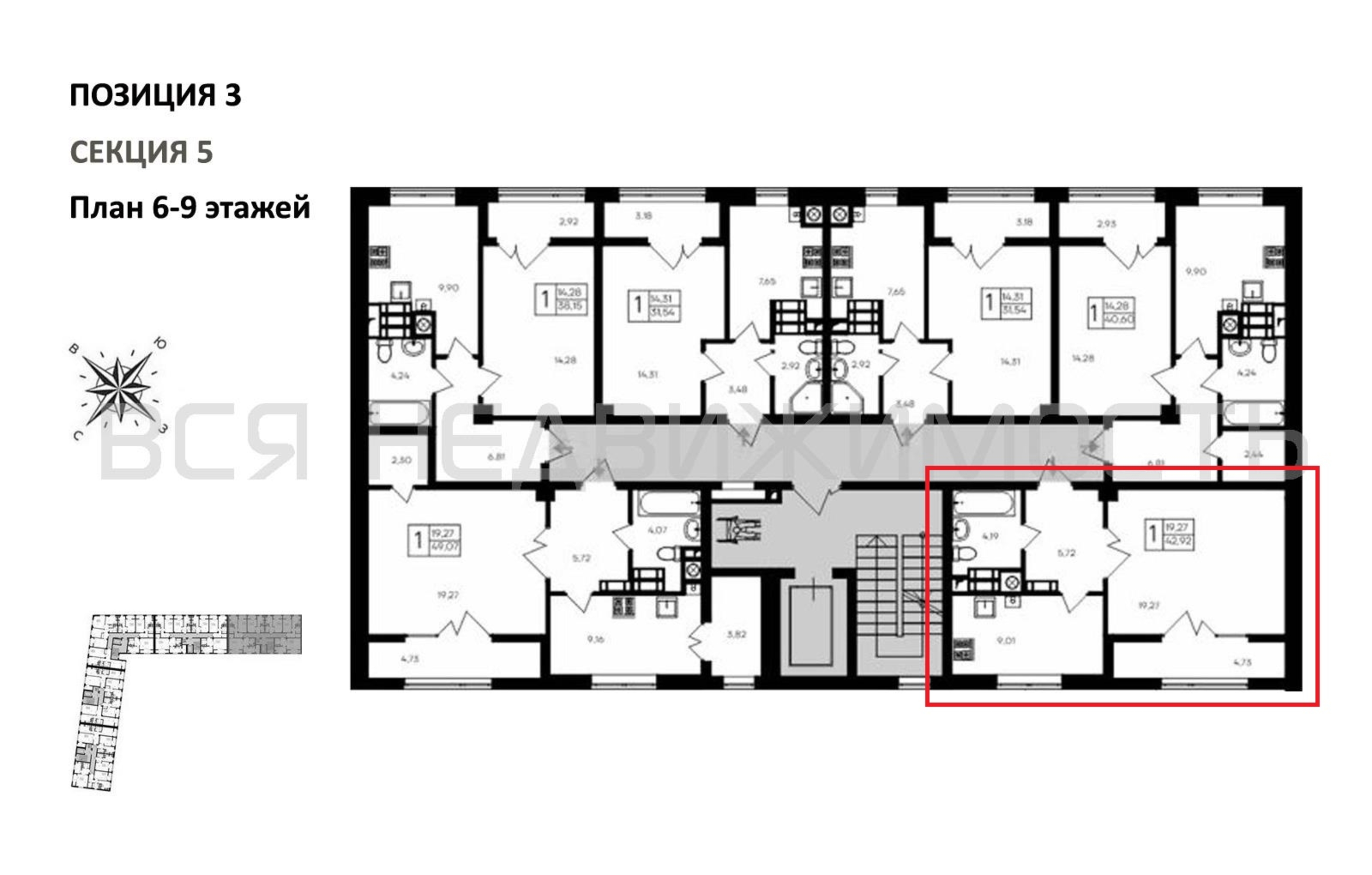
1-комнатная квартира, 42.92 м² 9/9 этаж ID объекта 100116860
с. Мирное, Парковая ул.,
Инфраструктура поблизости
График стоимости
Базовая цена:
6 034 552 ₽
158 014 ₽/м²
Семейная ипотека
от 28 944 ₽/мес
Ипотека
от 70 587 ₽/мес
? Расчет цены приблизительный, за более точной информацией обращайтесь к менеджеру
КорпусПозиция 3
Срок сдачи2 кв 2027
Тип домаМонолитно-блочный
Этаж9/9
№ Квартиры220
Тип сделкиПервичная продажа
Общая площадь38.19 м²
Строительная площадь42.92 м²
Жилая площадь19.27 м²
Площадь кухни9.01 м²
Высота потолков2.80 м
ОтделкаЧерновая отделка
СанузелСовмещенный
КладовкаНет
ЛифтДа
Изолированные комнатыДа
Онлайн показДа



