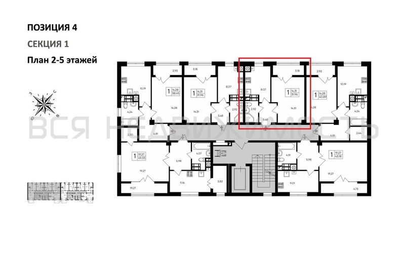
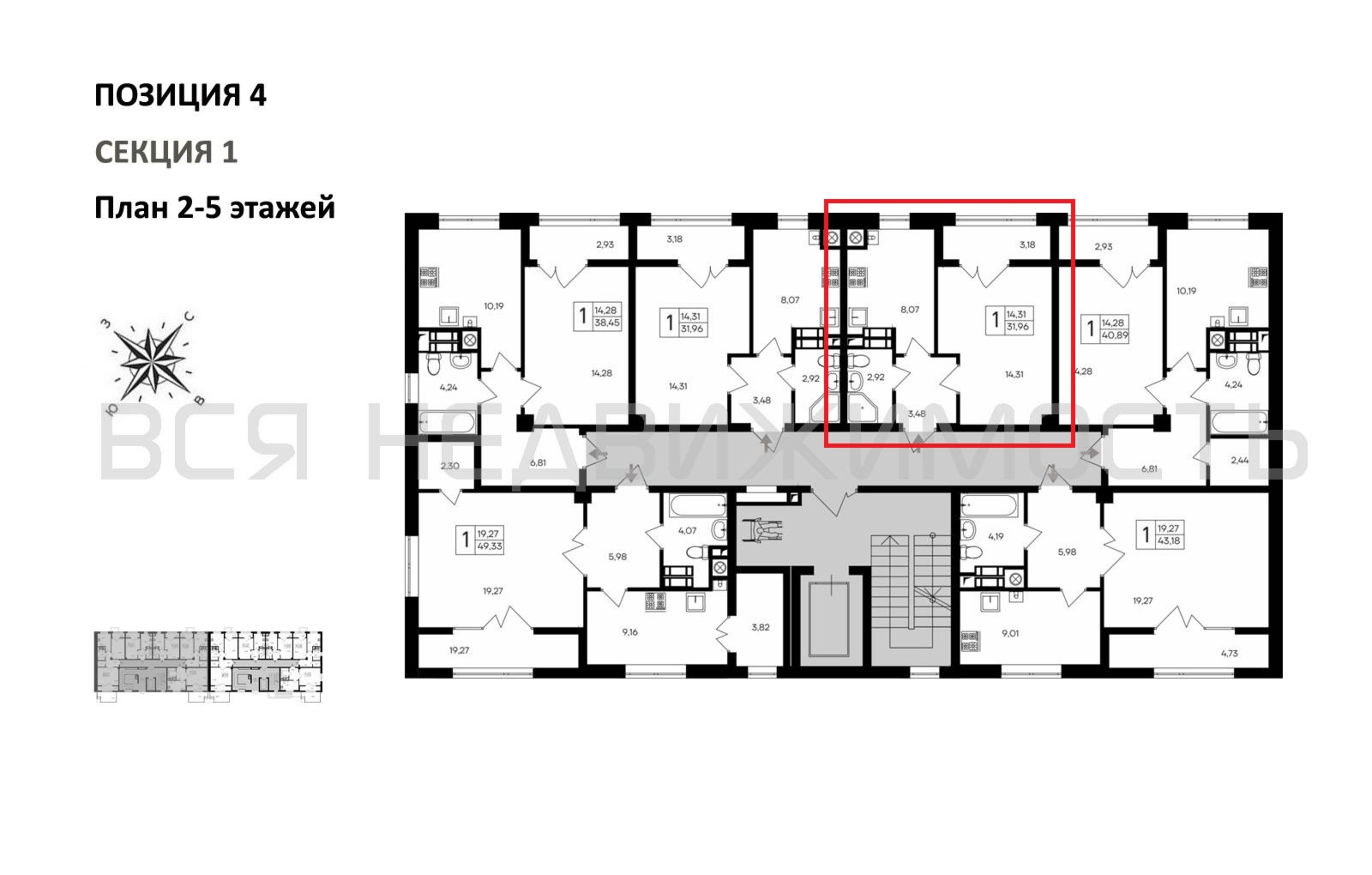
1-комнатная квартира, 31.96 м² 4/9 этаж ID объекта 100116881
с. Мирное, Парковая ул.,
Инфраструктура поблизости
График стоимости
Базовая цена:
4 953 800 ₽
172 126 ₽/м²
Семейная ипотека
от 23 760 ₽/мес
Ипотека
от 57 945 ₽/мес
? Расчет цены приблизительный, за более точной информацией обращайтесь к менеджеру
КорпусПозиция 4
Срок сдачи2 кв 2027
Тип домаМонолитно-блочный
Этаж4/9
№ Квартиры21
Тип сделкиПервичная продажа
Общая площадь28.78 м²
Строительная площадь31.96 м²
Жилая площадь14.31 м²
Площадь кухни8.07 м²
Высота потолков2.80 м
ОтделкаЧерновая отделка
СанузелСовмещенный
КладовкаНет
ЛифтДа
Изолированные комнатыДа
Онлайн показДа



