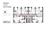
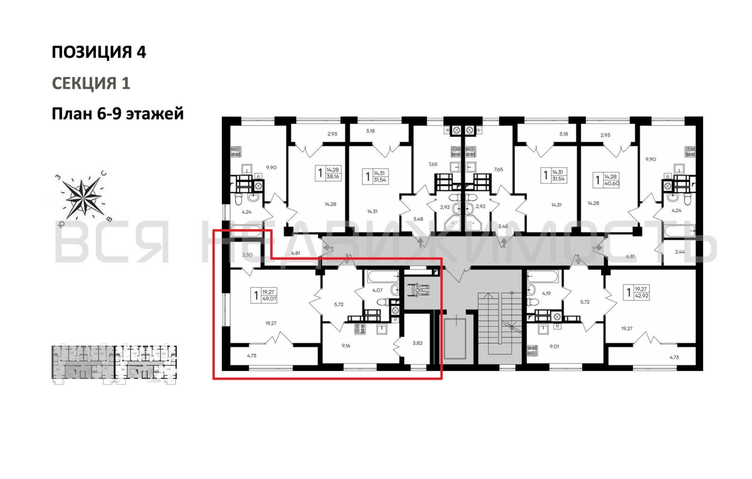
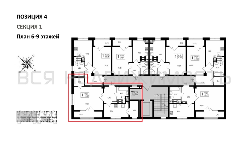
1-комнатная квартира, 49.07 м² 7/9 этаж ID объекта 100116896
с. Мирное, Парковая ул.,
Инфраструктура поблизости
График стоимости
Базовая цена:
6 852 626 ₽
154 547 ₽/м²
Семейная ипотека
от 32 868 ₽/мес
Ипотека
от 80 156 ₽/мес
? Расчет цены приблизительный, за более точной информацией обращайтесь к менеджеру
КорпусПозиция 4
Срок сдачи2 кв 2027
Тип домаМонолитно-блочный
Этаж7/9
№ Квартиры36
Тип сделкиПервичная продажа
Общая площадь44.34 м²
Строительная площадь49.07 м²
Жилая площадь19.27 м²
Площадь кухни9.16 м²
Высота потолков2.80 м
ОтделкаЧерновая отделка
СанузелСовмещенный
КладовкаДа
ЛифтДа
Изолированные комнатыДа
Онлайн показДа



