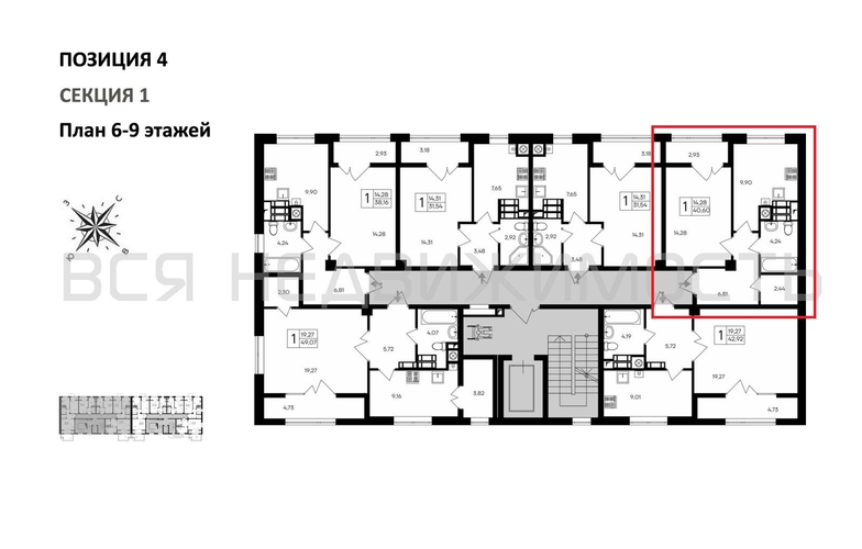
1-комнатная квартира, 40.60 м² 9/9 этаж ID объекта 100116912
с. Мирное, Парковая ул.,
Инфраструктура поблизости
График стоимости
Базовая цена:
5 785 500 ₽
153 584 ₽/м²
Семейная ипотека
от 27 750 ₽/мес
Ипотека
от 67 674 ₽/мес
? Расчет цены приблизительный, за более точной информацией обращайтесь к менеджеру
КорпусПозиция 4
Срок сдачи2 кв 2027
Тип домаМонолитно-блочный
Этаж9/9
№ Квартиры52
Тип сделкиПервичная продажа
Общая площадь37.67 м²
Строительная площадь40.60 м²
Жилая площадь14.28 м²
Площадь кухни9.90 м²
Высота потолков2.80 м
ОтделкаЧерновая отделка
СанузелСовмещенный
КладовкаДа
ЛифтДа
Изолированные комнатыДа
Онлайн показДа



