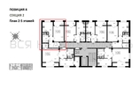
1-комнатная квартира, 38.44 м² 2/9 этаж ID объекта 100116920
с. Мирное, Парковая ул.,
Инфраструктура поблизости
График стоимости
Базовая цена:
5 593 020 ₽
157 461 ₽/м²
Семейная ипотека
от 26 826 ₽/мес
Ипотека
от 65 422 ₽/мес
? Расчет цены приблизительный, за более точной информацией обращайтесь к менеджеру
КорпусПозиция 4
Срок сдачи2 кв 2027
Тип домаМонолитно-блочный
Этаж2/9
№ Квартиры60
Тип сделкиПервичная продажа
Общая площадь35.52 м²
Строительная площадь38.44 м²
Жилая площадь14.28 м²
Площадь кухни10.19 м²
Высота потолков2.80 м
ОтделкаЧерновая отделка
СанузелСовмещенный
КладовкаНет
ЛифтДа
Изолированные комнатыДа
Онлайн показДа



