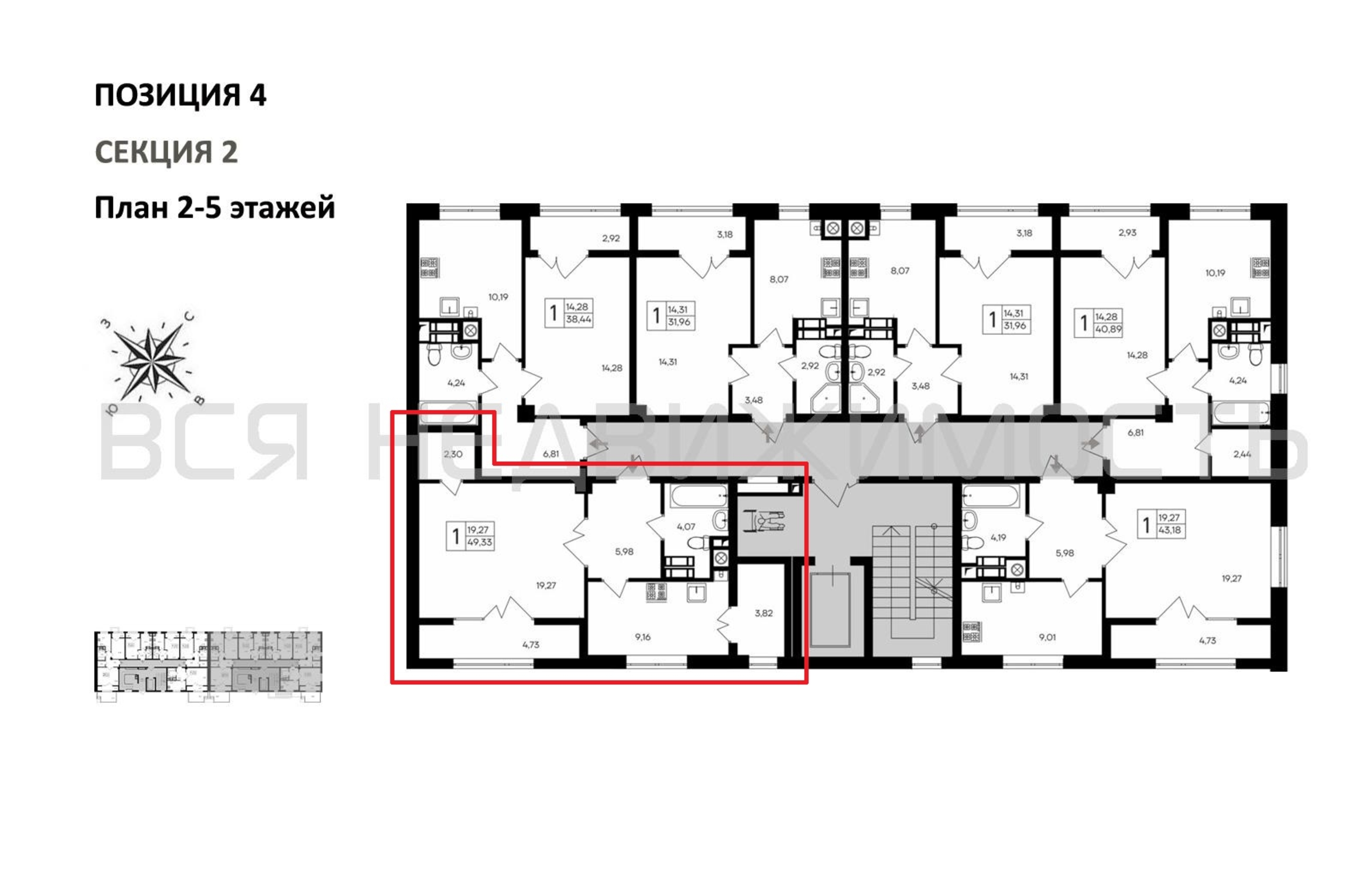
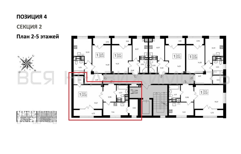
1-комнатная квартира, 49.33 м² 5/9 этаж ID объекта 100116937
с. Мирное, Парковая ул.,
Инфраструктура поблизости
График стоимости
Базовая цена:
6 888 935 ₽
154 460 ₽/м²
Семейная ипотека
от 33 042 ₽/мес
Ипотека
от 80 581 ₽/мес
? Расчет цены приблизительный, за более точной информацией обращайтесь к менеджеру
КорпусПозиция 4
Срок сдачи2 кв 2027
Тип домаМонолитно-блочный
Этаж5/9
№ Квартиры77
Тип сделкиПервичная продажа
Общая площадь44.60 м²
Строительная площадь49.33 м²
Жилая площадь19.27 м²
Площадь кухни9.16 м²
Высота потолков2.80 м
ОтделкаЧерновая отделка
СанузелСовмещенный
КладовкаДа
ЛифтДа
Изолированные комнатыДа
Онлайн показДа



