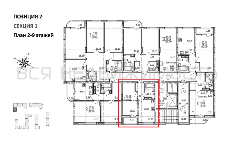
1-комнатная квартира, 34.44 м² 4/9 этаж ID объекта 100118889
Воронеж, Шишкова ул., д. 140б
Инфраструктура поблизости
График стоимости
Цена за наличные:
5 027 723 ₽
150 621 ₽/м²
Базовая цена:
5 183 220 ₽
Семейная ипотека
от 24 115 ₽/мес
Ипотека
от 58 810 ₽/мес
? Расчет цены приблизительный, за более точной информацией обращайтесь к менеджеру
Тип сделкиПервичная продажа
Общая площадь33.38 м²
Строительная площадь34.44 м²
Жилая площадь13.81 м²
Площадь кухни11.39 м²
Высота потолков2.72 м
ОтделкаЧерновая отделка
СанузелСовмещенный
КладовкаНет
ЛифтДа
Изолированные комнатыДа
Онлайн показДа



