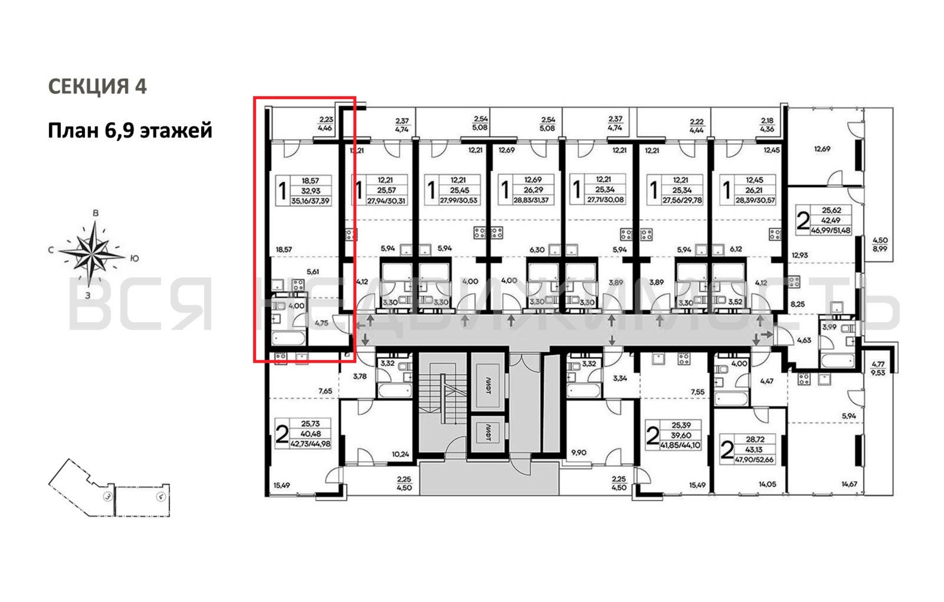
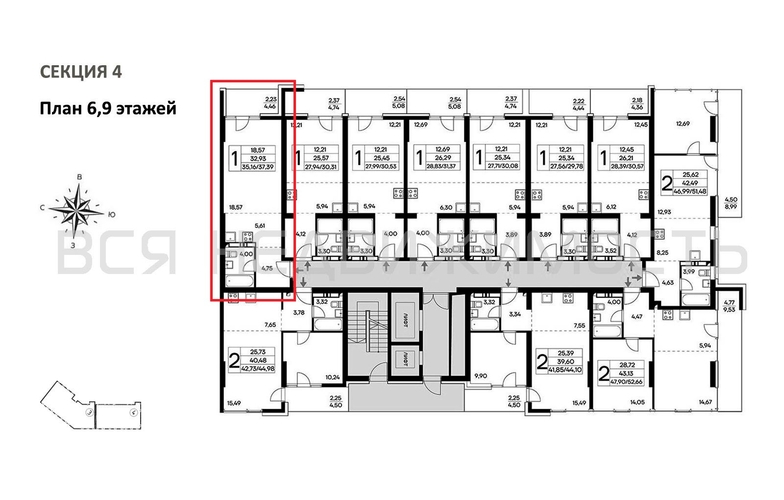
Квартиры-студии, 37.39 м² 6/14 этаж ID объекта 100119979
Алушта, п. Семидворье, Пограничный пер.,
Инфраструктура поблизости
График стоимости
Цена за наличные:
11 424 515 ₽
346 933 ₽/м²
Базовая цена:
11 777 850 ₽
Семейная ипотека
от 54 797 ₽/мес
Ипотека
от 133 634 ₽/мес
? Расчет цены приблизительный, за более точной информацией обращайтесь к менеджеру
Тип сделкиПервичная продажа
Общая площадь32.93 м²
Строительная площадь37.39 м²
Жилая площадь24.18 м²
Площадь кухни3.00 м²
Высота потолков2.70 м
ОтделкаЧерновая отделка
СанузелСовмещенный
КладовкаНет
ЛифтДа
Изолированные комнатыДа
Онлайн показДа



