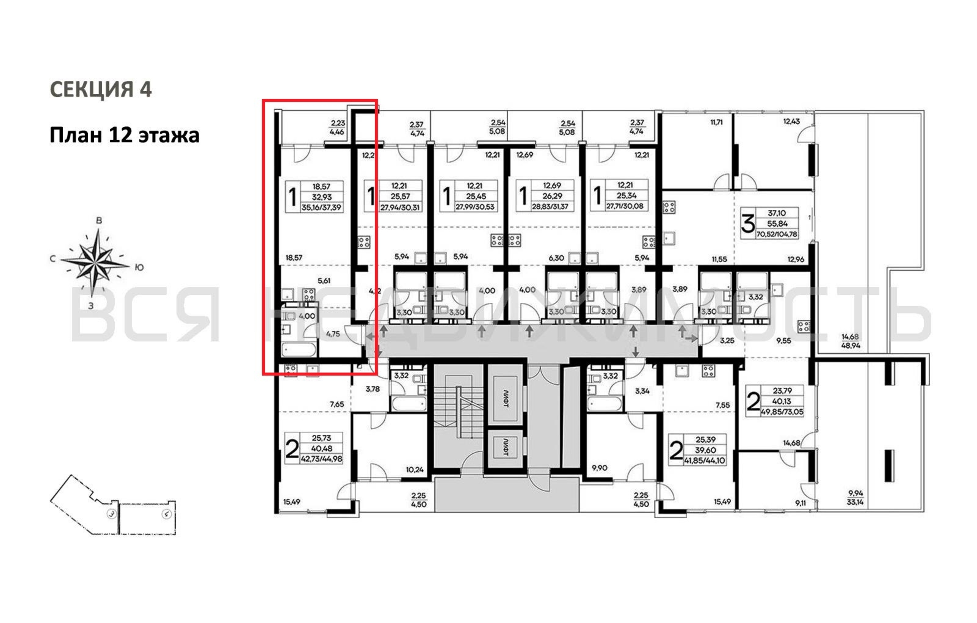
Квартиры-студии, 37.39 м² 12/14 этаж ID объекта 100120045
Алушта, п. Семидворье, Пограничный пер.,
Инфраструктура поблизости
График стоимости
Цена за наличные:
12 149 881 ₽
368 961 ₽/м²
Базовая цена:
12 525 650 ₽
Семейная ипотека
от 58 276 ₽/мес
Ипотека
от 142 119 ₽/мес
? Расчет цены приблизительный, за более точной информацией обращайтесь к менеджеру
Тип сделкиПервичная продажа
Общая площадь32.93 м²
Строительная площадь37.39 м²
Жилая площадь24.18 м²
Площадь кухни3.00 м²
Высота потолков3.00 м
ОтделкаЧерновая отделка
СанузелСовмещенный
КладовкаНет
ЛифтДа
Изолированные комнатыДа
Онлайн показДа



